Ga naar inhoud

Te koop: appartement Helmstraat 5C 2584 AR 's-Gravenhage

Plink Garantiemakelaars Den Haag
Contact me

Verkocht

€ 645.000,- k.k.

Stijlvol 5-kamer hoekappartement gelegen op de gehele tweede etage van een voormalig “Statenkwartier” herenhuis met totaal ca. 159 m² woonoppervlak volledig gelijkvloers en per lift te bereiken. Dit schitterende hoekappartement beschikt over een zeer gunstig energielabel B en totaal ca. 159 m² woonoppervlak verdeeld over een riante woonkamer met spectaculaire lichtinval, ruime woonkeuken, twee badkamers en drie riante slaapkamers.

Ideaal gelegen aan de rand van het Statenkwartier in de directe nabijheid van vele Internationale organisaties, openbaar vervoer, de winkels van de “Fred”, het Scheveningse strand, het Westbroekpark en uitvalswegen.

Indeling:
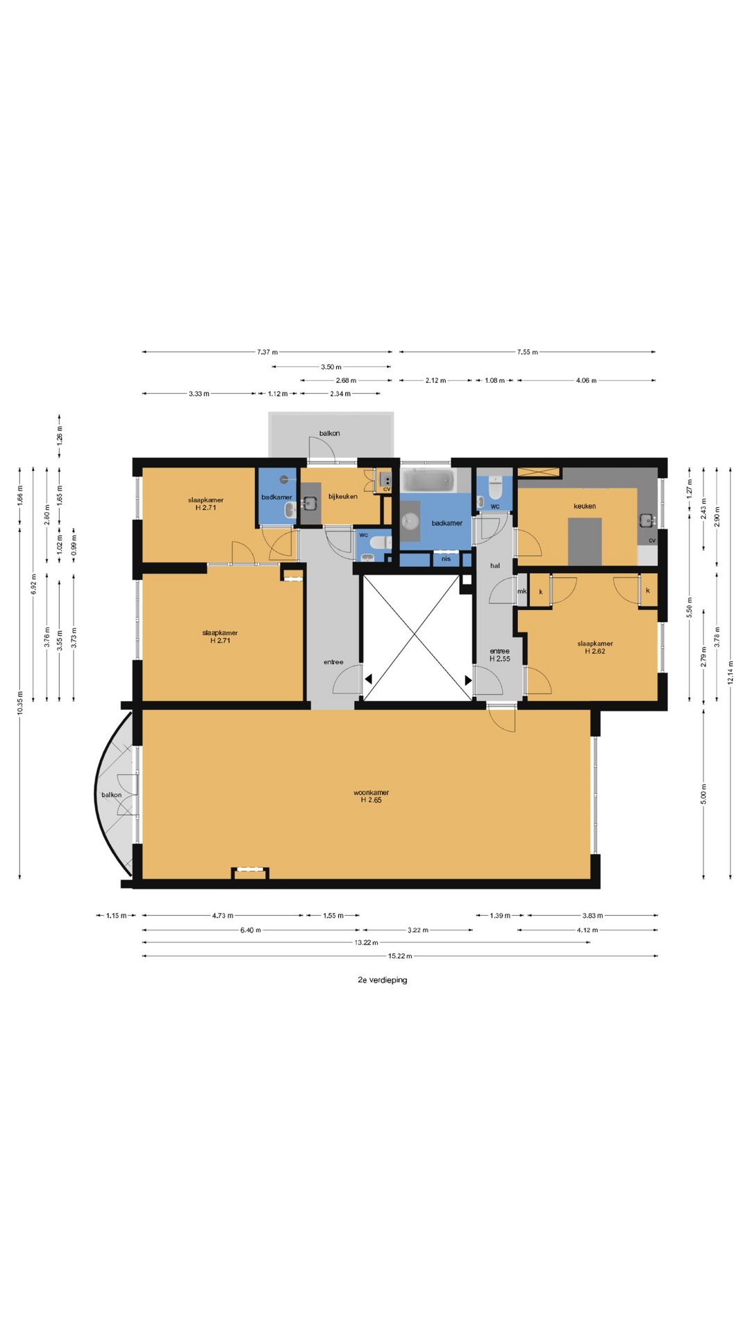
Entree van het appartementencomplex, midden in het pand verbindt een glazen lift de etages met elkaar, met deze lift naar de 2e etage, hal met toilet, woonkeuken in hoekopstelling voorzien van 4-pits rvs gaskookplaat, combimagnetron, koel-/vriescombinatie, eiland en veel kastruimte. De eerste slaapkamer is rustig gelegen aan de achterzijde en beschikt over twee vaste kasten. De woonkamer voormalig en suite is voorzien van grote raampartijen aan de achterzijde waardoor een zeer gunstige lichtinval ontstaat. Vrij uniek is de breedtemaat van de woonkamer van ca. 5,00 meter. Het voorbalkon is te bereiken vanuit de woonkamer en is op het zonnige zuidoosten gelegen. Voor de middag-/en avondzon kan er worden gebruik gemaakt van het tweede balkon dat pal op het zuidwesten is gelegen en via de bijkeuken is te bereiken. De tussengelegen badkamer is ruim van formaat, beschikt over natuurlijk licht, een jacuzzi en meubel met wastafel. Aan de voorzijde nog twee riante slaapkamers en een tweede badkamer voorzien van douche en wastafel.

Aanvullende informatie:
– ’s-Gravenhage AG nummer 3855 A-3
– Het betreft huisnummer 5 C en 5 D
– Eigen grond
– Energielabel B
– Bouwjaar 1905
– Transformatie naar appartementen eind jaren ‘90
– Rijks Beschermd stadsgezicht
– Gebouw met lift
– 1/4e aandeel in actieve VvE
– Bijdrage VvE € 250,- per maand
– Ouderdoms-, materialen- en niet bewoningsclausule van toepassing
– Algemene verkoopvoorwaarden van toepassing
– Projectnotaris Matzinger Eversdijk
– Oplevering kan indien gewenst snel

  • 159 m2
  • 3

Features Helmstraat 5C

Overdracht

Vraagprijs€ 645.000,- k.k.
AanvaardingIn overleg

Oppervlaktes en inhoud

Woonoppervlakte159 m2
Inhoud529 m3

Bouw

SoortBovenwoning
BouwvormBestaande bouw
Bouwjaar1905
IsolatievormenDubbelglas
EnergielabelB

Indeling

Aantal verdiepingen1
Aantal kamers5
Aantal slaapkamers3
Aantal badkamers2

Monthly costs

Location Helmstraat 5C

Voorzieningen

Centraal gelegen informatie over de buurt

Aantal inwoners

In de gemeente

524.882

Leeftijd

in percentages van totaal

Huishoudsamenstelling

in percentages van totaal

45%

20% NL

24%

20% NL

31%

20% NL

Comparable listings