Ga naar inhoud

Te koop: appartement Van Lumeystraat 62 2581 XD 's-Gravenhage

Plink Garantiemakelaars Den Haag
Contact me
Plan viewing

Beschikbaar

Plan viewing

€ 595.000,- k.k.

Gezellige dubbele bovenwoning totaal ca. 137 m2 woonoppervlak met 2 balkons en veel mogelijkheden.

De woning is gelegen op een perfecte locatie in het Geuzenkwartier aan de rand van het Statenkwartier en Scheveningen, op loopafstand van het groen van de Bosjes van Poot, de duinen, het strand, de haven van Scheveningen en de horeca en winkelvoorzieningen van de “Fred”, alsmede diverse internationale organisaties en scholen.

Entree appartement op de begane grond, hal en trap met verlichte trapleuning naar de 1e etage, overloop, kamers en suite met glas-in-lood schuifdeuren, schoorsteenmantels, eenvoudige keuken met inbouw apparatuur en opstelplaats voor wasmachine en wasdroger, toilet-douchecombinatie en deur naar balkon, voorzijkamer.

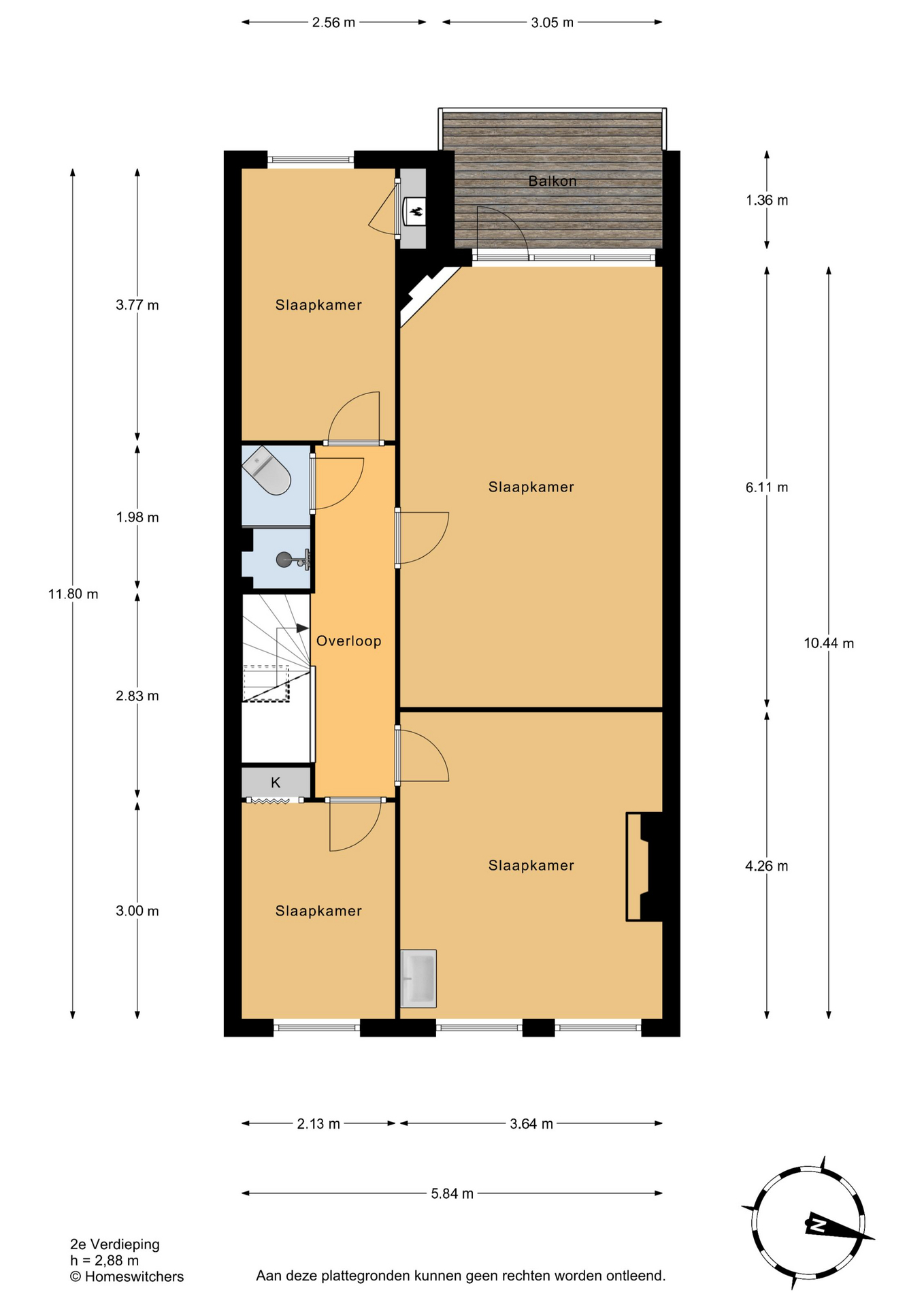
Trap naar de 2e etage, overloop met daklicht, ruime achterslaapkamer met deur naar met deur naar ruim achterbalkon, ruime voorslaapkamer ca. 3.13×212, voorzijkamer en achterzijkamer, toilet-douchecombinatie. Op deze verdieping is er voldoende mogelijkheid om een volwaardige tussenbadkamer te creĆ«ren waardoor de 4 kamers op deze etage behouden blijven.

Aanvullende informatie;
– ‘s-Gravenhage AK 9783 A-2
– Eigen grond
– Bouwjaar 1914
– Rijksbeschermd stadsgezicht Statenkwartier
– 1/2e aandeel
– VvE in oprichting
– CV combiketel
– Woonoppervlak conform NVM meetinstructie 137,2 m2
– Energielabel D
– Ouderdoms-, materialen- en niet-bewoningsclausule van toepassing
– Verkoop onder voorbehoud opheffing huisnummer
– Algemene verkoopvoorwaarden Plink Makelaars van toepassing
– Oplevering in overleg

  • 137 m2
  • 5

Features Van Lumeystraat 62

Overdracht

Vraagprijs€ 595.000,- k.k.
AanvaardingIn overleg

Oppervlaktes en inhoud

Woonoppervlakte137 m2
Inhoud503 m3

Bouw

SoortBovenwoning
BouwvormBestaande bouw
Bouwjaar1914
IsolatievormenGedeeltelijk dubbelglas
EnergielabelD

Indeling

Aantal verdiepingen2
Aantal kamers7
Aantal slaapkamers5
Aantal badkamers1

Monthly costs

Location Van Lumeystraat 62

Voorzieningen

Centraal gelegen informatie over de buurt

Aantal inwoners

In de gemeente

524.882

Leeftijd

in percentages van totaal

Huishoudsamenstelling

in percentages van totaal

44%

20% NL

26%

20% NL

30%

20% NL

Comparable listings