€ 425.000,- k.k.
Unieke drive-in woning gelegen op een fantastische locatie in het hart van het prestigieuze Buurtschap 2005, parallel aan de bruisende Frederikstraat met een ruim aanbod aan wijnbars, hooggewaardeerde bistro’s, fashion en beauty. Deze locatie staat daarnaast bekend om haar historische panden, rijksmonumenten en de strategische ligging ten opzichte van het Centrum en de rijksweg A12.
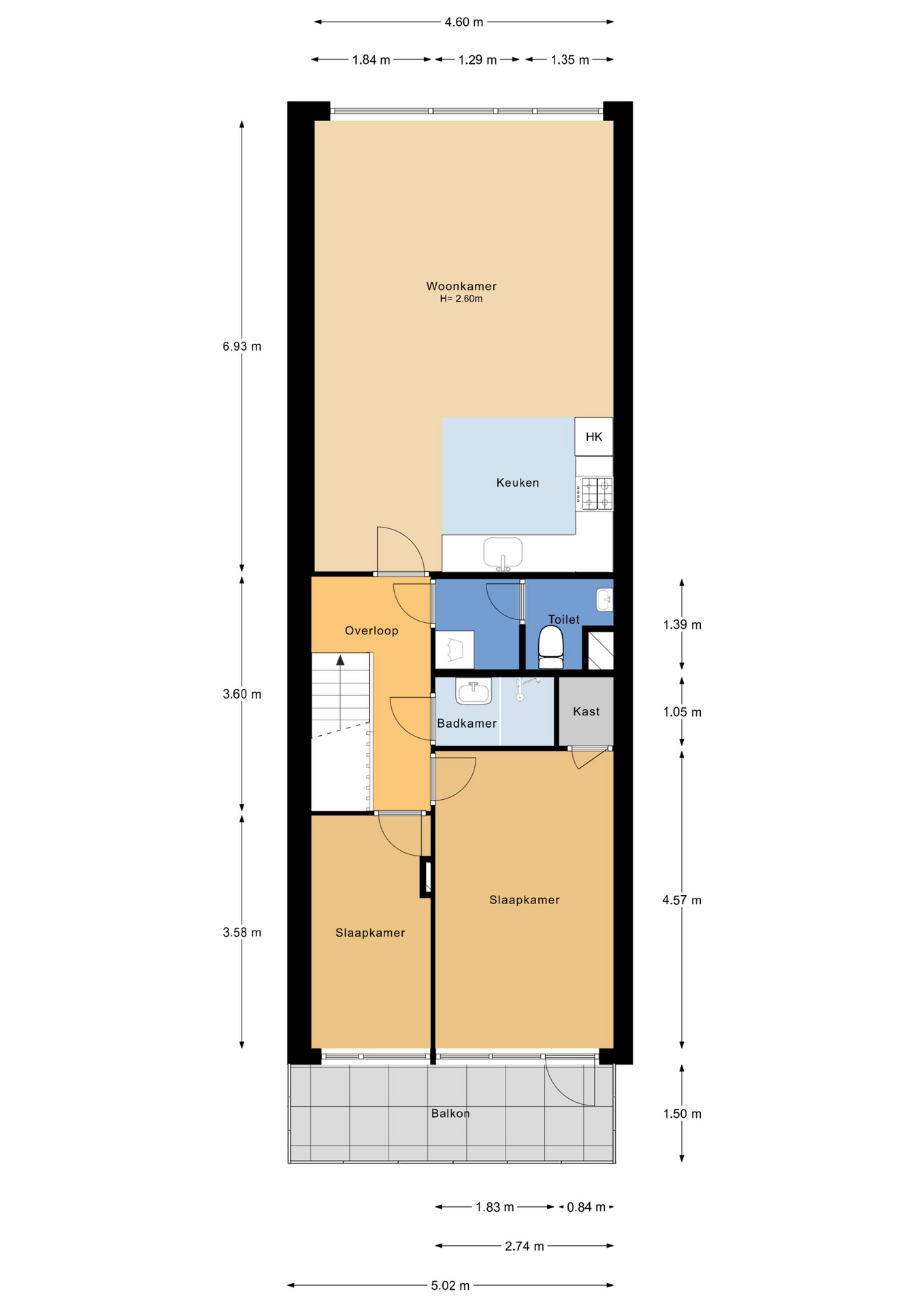
Het totale vloeroppervlakte van deze woning bestaat uit ca. 92 m² verdeeld over ca. 21 m² garage en ca. 71 m² woonoppervlak met uitzonderlijk rustig gelegen woonkamer, moderne open keuken, twee ruime slaapkamers en keurig sanitair. Tot nog een ruim balkon pal zuidwest over de volle breedte met uitzicht over de groenvoorziening van de binnenplaats.
Indeling:
Eigen entree op straatniveau, garage met elektrische overheaddeur, binnendeur naar hal met meterkast, trap naar de eerste etage, overloop met deur naar de woonkamer met mooie breedte maat, gunstige lichtinval en open keuken in hoekopstelling voorzien van 4-pits gaskookplaat, koel-/vriescombinatie en nieuwe vaatwasser. De slaapkamers zijn rustig gelegen met veel privacy en ruim van formaat, de tussengelegen badkamer is voorzien van tegelwerk, douchecabine, wastafel en spiegelkast. Tot slot de wasruimte met deur naar toilet met fonteintje.
Aanvullende informatie:
– ’s-Gravenhage sectie P complexaanduiding 9991 A-207
– Eigen grond
– Rijks beschermd stadsgezicht
– Bouwjaar 1976
– 147/10.000ste aandeel in VvE
– Maandelijkse VvE bijdrage € 313,18
– Maandelijks voorschot stookkosten € 159,54
– Ouderdoms-, materialen- en niet-bewoningsclausule van toepassing
– Projectnotaris Ellens & Lentze
– Oplevering kan indien gewenst snel
- 71 m2
- 2
Features Frederikstraat 301
Overdracht
| Vraagprijs | € 425.000,- k.k. |
|---|---|
| Aanvaarding | In overleg |
Oppervlaktes en inhoud
| Woonoppervlakte | 71 m2 |
|---|---|
| Inhoud | 310 m3 |
Bouw
| Soort | Beneden plus bovenwoning |
|---|---|
| Bouwvorm | Bestaande bouw |
| Bouwjaar | 1976 |
| Energielabel | D |
Indeling
| Aantal verdiepingen | 2 |
|---|---|
| Aantal kamers | 4 |
| Aantal slaapkamers | 2 |
| Aantal badkamers | 1 |
Monthly costs
Location Frederikstraat 301
Voorzieningen
- Willemspark 36 m Frederikstraat 28 'S-GRAVENHAGE
- Hogeschool der Kunsten Den Haag 2 km Juliana van Stolberglaan 1 S-GRAVENHAGE
- ROC Mondriaan 1 km Koningin Marialaan 9 S-GRAVENHAGE
- Hogeschool der Kunsten Den Haag 2 km Juliana van Stolberglaan 1 S-GRAVENHAGE
- Technische Universiteit Delft 10 km Prometheusplein 1 DELFT
Centraal gelegen informatie over de buurt
Aantal inwoners
In de gemeente
524.882
Leeftijd
in percentages van totaal
Huishoudsamenstelling
in percentages van totaal
61%
20% NL
23%
20% NL
16%
20% NL