€ 350.000,- k.k.
Op zoek naar een pittoresk uitzicht op Oud Scheveningen ?! Surfen op 100 meter van je huis!
Perfect gelegen 3-kamer appartement met een woonoppervlak van 68 m2, met een ruim terras op de middag -en avondzon alsmede een balkon midden in het gezellige Oud Scheveningen. Het appartement is gesitueerd op de eerste etage van een markant hoekpand, met vrij uitzicht op de Oude kerk en beschikt over een heerlijk lichte en ruime woonkamer met ramen rondom en daardoor een prachtige lichtinval.
De locatie is uitstekend te noemen op kruipafstand van het strand van Scheveningen, de zee ligt voor de deur en bovendien op loopafstand van de gezellige Keizerstraat, het Kurhaus, De Palace Promenade, een geweldig aanbod aan horecagelegenheden en openbaar vervoer.
De bereikbaarheid is goed, op loopafstand van verschillende openbaarvervoeraansluitingen. Ook uitvalswegen als de A4, A44 en A12 zijn snel bereikbaar.
Vanwege de aangebrachte energiebesparende voorzieningen beschikt deze leuke woning over een gunstig energielabel C.
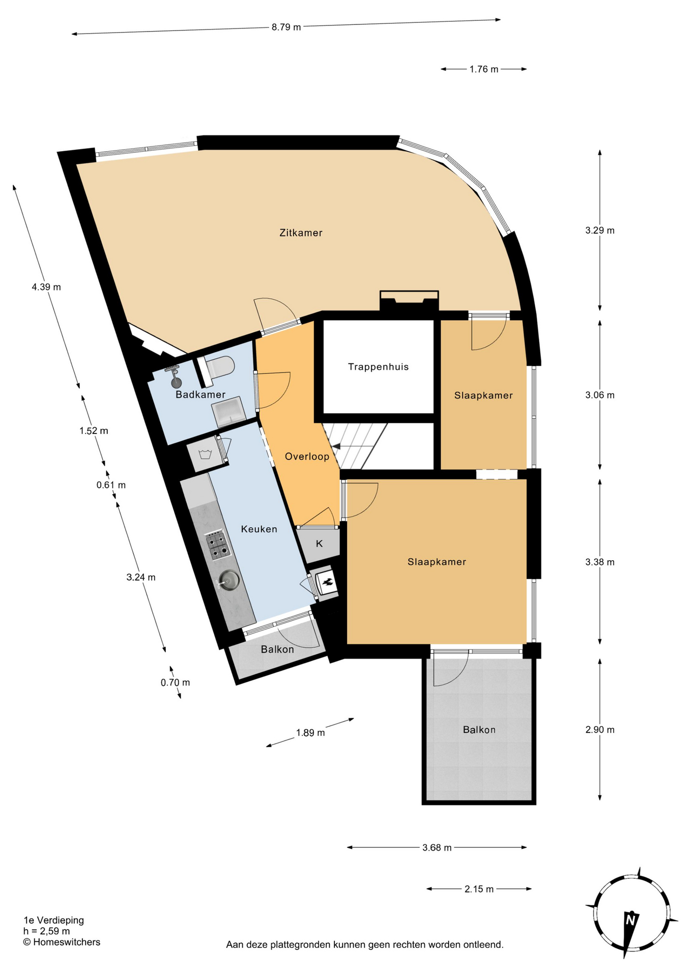
Indeling:
Entree van het appartement op straatniveau, met trap naar de 1e etage. Hal met toegang tot de woonkamer aan de rechterzijde, gelegen op de hoek van het pand, wat resulteert in een fraai uitzicht en fantastische lichtinval. De tussengelegen keuken is voorzien van oven, vaatwasser, 4-pits gasfornuis, afzuigkap, koelkast, vriezer en toegang tot het tweede balkon. De hoofdslaapkamer bevindt zich aan de achterzijde, met toegang tot het terras en de 2e slaapkamer is bereikbaar via de living. De moderne badkamer is voorzien van ruime inloopdouche met regendouche, wastafel met badkamermeubel en toilet.
Aanvullende informatie:
– ās-Gravenhage sectie AF nummer 3522 A2
– 1/3e aandeel in de gemeenschap
– Bouwjaar 1925
– Erfpacht eeuwigdurend afgekocht
– Woonoppervlak conform BBMI 68 m²
– Volledig voorzien van dubbele beglazing
– Energielabel C t/m 07/05/2032
– Cv-combiketel Intergas 2016
– Ouderdoms-, materialen- en niet-bewoningsclausule van toepassing
– Projectnotaris Van Buttingha Wichers notarissen
– Algemene verkoopvoorwaarden Plink Garantiemakelaars van toepassing
– Oplevering direct
- 68 m2
- 2
Features Schuitenweg 31
Overdracht
| Vraagprijs | € 350.000,- k.k. |
|---|---|
| Aanvaarding | In overleg |
Oppervlaktes en inhoud
| Woonoppervlakte | 68 m2 |
|---|---|
| Inhoud | 245 m3 |
Bouw
| Soort | Bovenwoning |
|---|---|
| Bouwvorm | Bestaande bouw |
| Bouwjaar | 1925 |
| Dak type | Plat dak |
| Isolatievormen | Dubbelglas |
| Energielabel | C |
Indeling
| Aantal verdiepingen | 1 |
|---|---|
| Aantal kamers | 3 |
| Aantal slaapkamers | 2 |
| Aantal badkamers | 1 |
Monthly costs
Location Schuitenweg 31
Voorzieningen
- Protestants Christelijke Basisschool De Vuurtoren 691 m Stevinstraat 65E 'S-GRAVENHAGE
- Hotelschool The Hague 1 km Brusselselaan 2 S-GRAVENHAGE
- ROC Mondriaan 5 km Koningin Marialaan 9 S-GRAVENHAGE
- Hotelschool The Hague 1 km Brusselselaan 2 S-GRAVENHAGE
- Technische Universiteit Delft 14 km Prometheusplein 1 DELFT
Centraal gelegen informatie over de buurt
Aantal inwoners
In de gemeente
524.882
Leeftijd
in percentages van totaal
Huishoudsamenstelling
in percentages van totaal
53%
20% NL
23%
20% NL
24%
20% NL