Ga naar inhoud

Te koop: appartement Daltonstraat 4 2561 ST 's-Gravenhage

Plink Garantiemakelaars Den Haag
Contact me

Verkocht

€ 325.000,- k.k.

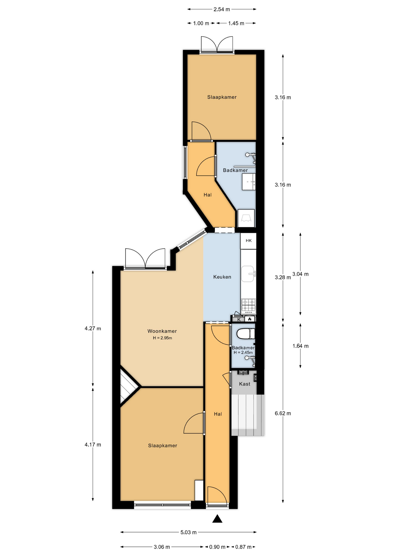
Charmante 3-kamer parterre van ca. 58 m² woonoppervlak verdeeld over woonkamer met zeer gunstige lichtinval en hoge plafonds, open keuken met inbouwapparatuur, moderne badkamer en twee ruime slaapkamers. Deze stijlvolle woning beschikt bovendien over een gezellige L-vormige achtertuin die op het zonnige zuidoosten is gelegen.

De locatie in het Valkenboskwartier is uitstekend te noemen en op loopafstand van het gezellige Regentesseplein, de winkels van de Weimarstraat en sportpark De Verademing. Daarnaast is het pand zeer strategisch gelegen ten opzicht van het Centrum, het strand van Scheveningen, scholen en openbaar vervoer.

Indeling:
Eigen entree, hal met diepe trapkast, apart toilet met wandcloset en vaste kast met cv-ketel, slaapkamer aan de voorzijde met grote raampartijen en hoog plafond, woonkamer rustig gelegen aan de achterzijde met moderne open keuken voorzien van inbouwoven, koel-/vriescombinatie en 4-pits gaskookplaat. De woonkamer heeft openslaande deuren naar de achtertuin die op het zuidoosten is gelegen. De tweede ruime slaapkamer is rustig gelegen aan de achterzijde, grenst aan de tuin en heeft eveneens openslaande deuren. De tussengelegen badkamer is voorzien van fraai tegelwerk, inloopdouche met glazen wand, handdoekradiator en meubel met wastafel.

Aanvullende informatie:
– ‘s-Gravenhage AM nummer 8496 A1
– Eigen grond
– Bouwjaar 1910
– Energielabel F
– Gemeentelijk beschermd stadsgezicht Regentessekwartier
– Volledig voorzien van dubbel glas
– Cv-combiketel Intergas 2010
– 17/38 aandeel in de VvE
– Maandelijkse VvE bijdrage € 57,-
– Ouderdoms-, niet-bewonings- en materialenclausule van toepassing
– Projectnotaris Rosenberg Polak
– Algemene verkoopvoorwaarden Plink Garantiemakelaars van toepassing
– Oplevering in overleg

  • 58 m2
  • 2

Features Daltonstraat 4

Overdracht

Vraagprijs€ 325.000,- k.k.
AanvaardingIn overleg

Oppervlaktes en inhoud

Woonoppervlakte58 m2
Inhoud242 m3

Bouw

SoortBenedenwoning
BouwvormBestaande bouw
Bouwjaar1910
IsolatievormenDubbelglas
EnergielabelF

Indeling

Aantal verdiepingen1
Aantal kamers3
Aantal slaapkamers2
Aantal badkamers1

Monthly costs

Location Daltonstraat 4

Voorzieningen

Centraal gelegen informatie over de buurt

Aantal inwoners

In de gemeente

524.882

Leeftijd

in percentages van totaal

Huishoudsamenstelling

in percentages van totaal

53%

20% NL

21%

20% NL

26%

20% NL

Comparable listings