€ 349.000,- k.k.
Fijne , lichte en netjes onderhouden 3/4 kamer parterrewoning totaal ca 65 m2 woonoppervlak met heerlijke
vrij gelegen en zonnige achtertuin van ca 51 m2 pal Zuid West met grote stenen schuur met elektra- en wateraansluiting, gelegen op eeuwigdurende afgekochte erfpacht middels obligatoire overeenkomst.
De woning is gelegen in het rustige deel van de straat pal om de hoek van de Duivelandsestraat, op loopafstand van de Bosjes van Poot, het Westduinpark met zijn prachtige Schotse Hooglanders en het Zuiderstrand van Scheveningen met volop surf mogelijkheden.
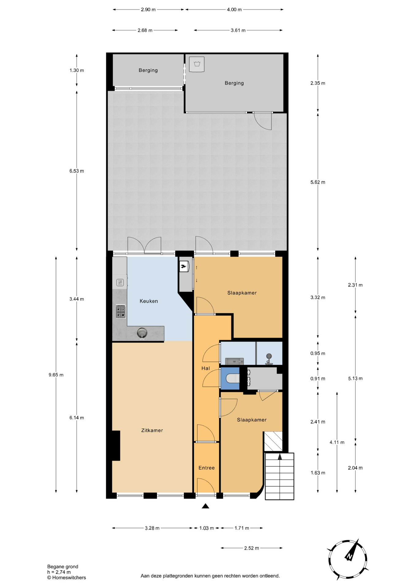
Entree begane grond, vestibule met tochtdeur naar de gang met toilet, lichte doorgebroken kamers en suite met
open woonkeuken met diverse inbouwapparatuur en openslaande deuren naar de heerlijke vrij gelegen zonnige achtertuin met stenen schuur met bergruimte met opstelplaats wasmachine of andere doeleinden zoals bijvoorbeeld een extra kamer, Voorts in de woning vanuit de gang, voorzijkamer met hoogslaper en meterkast, achterzijkamer met tuindeur en vaste kast, nette betegelde badruimte met inloopdouche en wastafel met meubel.
Aanvullende informatie:
– ās-Gravenhage sectie AO nummer 2924 A-1
– Eeuwigdurend afgekochte erfpacht middels obligatoire overeenkomst
– Bouwjaar 1929
– Woonoppervlak conform BBMI ca 65 m²
– Energielabel D
– 1/3e aandeel in actieve VvE
– Maandelijkse VvE-bijdrage ⬠125,00 per maand
– Renovatie achtergevel/balkons 2025
– Dak vernieuwd rond 2019
– Nieuwe riolering rond 2012
– Nieuwe groepenkast/ 8 groepen rond 2012
– Collectieve opstalverzekering
– Cv combiketel Remeha Avanta 2010
– Algemene verkoopvoorwaarden Plink NVM Garantiemakelaars van toepassing
– Ouderdoms- en materialenclausule van toepassing
– Projectnotaris Matzinger Eversdijk
- 65 m2
- 2
Features Pluvierstraat 457
Overdracht
| Vraagprijs | € 349.000,- k.k. |
|---|---|
| Aanvaarding | In overleg |
Oppervlaktes en inhoud
| Woonoppervlakte | 65 m2 |
|---|---|
| Inhoud | 245 m3 |
Bouw
| Soort | Benedenwoning |
|---|---|
| Bouwvorm | Bestaande bouw |
| Bouwjaar | 1929 |
| Dak type | Plat dak |
| Energielabel | D |
Indeling
| Aantal verdiepingen | 1 |
|---|---|
| Aantal kamers | 3 |
| Aantal slaapkamers | 2 |
| Aantal badkamers | 1 |
Monthly costs
Location Pluvierstraat 457
Voorzieningen
Centraal gelegen informatie over de buurt
Aantal inwoners
In de gemeente
524.882
Leeftijd
in percentages van totaal
Huishoudsamenstelling
in percentages van totaal
42%
20% NL
22%
20% NL
36%
20% NL