€ 795.000,- k.k.
Spectaculair high-end renovatieproject waarbij een schitterend 6-kamer dubbel bovenhuis compleet inwendig is gerenoveerd en is voorzien van dakterras met panoramisch uitzicht over de skyline van Den Haag. Het geheel is in 2024 voorzien van nieuw leidingwerk, nieuwe installaties, nieuwe luxe open keuken, stuc- en schilderwerk en stijlvol sanitair.
De locatie in het prestigieuze Benoordenhout is uitstekend te noemen pal om de hoek van het gezellige Van Hoytemaplein en gunstig gelegen ten opzichte van rijksweg A14/a12/A13, internationale organisaties, scholen, traiteurs, kleinschalige horecagelegenheden en speciaalzaken.
Dankzij de aangebrachte energiebesparende voorzieningen beschikt elk appartement over een gunstig energielabel A.
Indeling:
Eigen entree op straatniveau, ruime hal met meterkast, overloop met apart toilet voorzien van fraai tegelwerk, wandtoilet en fonteintje. Vanuit de overloop dubbele stalen deuren naar de woonkamer met zeer gunstige lichtinval, luxe open keuken voorzien van kookeiland met natuurstenen werkblad, 4-pits inductiekookplaat met geïntegreerde afzuiging, combioven, koel-/vriescombinatie en vaatwasser. Vanuit de keuken een grote raampartij tot aan de vloer met openslaande deuren naar achterbalkon over de volle breedte. Aan de achterzijde is een zijkamer gesitueerd die zeer geschikt is als werkkamer en over een deur naar het achterbalkon beschikt.
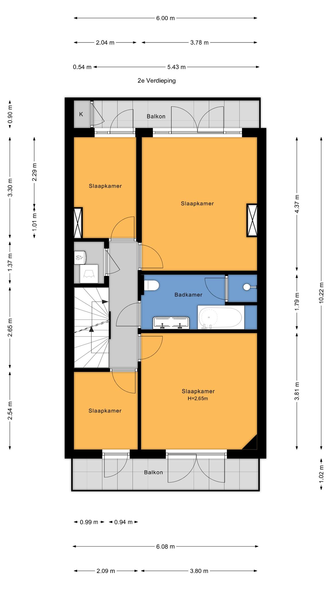
Vanuit de overloop de trap naar de tweede etage, overloop met zijkamer aan de achterzijde, riante slaapkamer aan de achterzijde met balkon, riante slaapkamer aan de voorzijde eveneens met balkon, tussengelegen badkamer met fraai vrijstaand ligbad, hoogwaardig tegelwerk, inloopdouche met glazen wand, handdoekradiator en badkamermeubel met wastafel. De eyecatcher van dit beeldschone appartement is het riante dakterras met vrij uitzicht over de skyline van Den Haag.
Aanvullende informatie:
– ’s-Gravenhage sectie X nummer 5673 A-3
– Eigen grond
– Bouwjaar 1932
– Energielabel A
– Rijks beschermd stadsgezicht
– 1/3e aandeel in de VvE
– Maandelijkse VvE bijdrage € 185,25
– Collectieve opstalverzekering
– Cv-combiketel Intergas 2023
– Garantie op de uitgevoerde werkzaamheden (6 maanden)
– Ouderdoms- en niet-bewoningsclausule van toepassing
– Projectnotaris Rosenberg Polak
– Oplevering direct
- 133 m2
- 4
Features Breitnerlaan 65
Overdracht
| Vraagprijs | € 795.000,- k.k. |
|---|---|
| Aanvaarding | In overleg |
Oppervlaktes en inhoud
| Woonoppervlakte | 133 m2 |
|---|---|
| Inhoud | 445 m3 |
Bouw
| Soort | Bovenwoning |
|---|---|
| Bouwvorm | Bestaande bouw |
| Bouwjaar | 1932 |
| Energielabel | A |
Indeling
| Aantal verdiepingen | 2 |
|---|---|
| Aantal kamers | 6 |
| Aantal slaapkamers | 4 |
| Aantal badkamers | 1 |
Monthly costs
Location Breitnerlaan 65
Voorzieningen
- Oranje Nassauschool voor Christelijk Basisonderwijs 383 m Weissenbruchstraat 119 'S-GRAVENHAGE
- Hogeschool der Kunsten Den Haag 1 km Juliana van Stolberglaan 1 S-GRAVENHAGE
- ROC Mondriaan 963 m Koningin Marialaan 9 S-GRAVENHAGE
- Hogeschool der Kunsten Den Haag 1 km Juliana van Stolberglaan 1 S-GRAVENHAGE
- Technische Universiteit Delft 11 km Prometheusplein 1 DELFT
Centraal gelegen informatie over de buurt
Aantal inwoners
In de gemeente
524.882