Ga naar inhoud

Te koop: appartement Van Beverningkstraat 133A 2582 VD 's-Gravenhage

Plink Garantiemakelaars Den Haag
Contact me
Plan viewing

Beschikbaar

Plan viewing

€ 435.000,- k.k.

Uniek 3-kamer appartement gelegen in één van de mooiste straten van het Statenkwartier met voornamelijk herenhuizen en pal om de hoek van de gezellige “Fred” die al sinds 1909 bekend staat als de charmantste winkelstraat van Den Haag met een ruim aanbod aan hooggewaardeerde bistro’s, traiteurs, speciaalzaken, landelijke winkelketens, beauty en fashion.

Het appartement is gelegen achter een karakteristieke Statenkwartier gevel in een voormalig 3-laags herenhuis met hoge plafonds, voorbalkon en riante kamers met zeer gunstige lichtinval.

Vanwege de aangebrachte energiebesparende voorzieningen beschikt deze woning over een gunstig energielabel C.

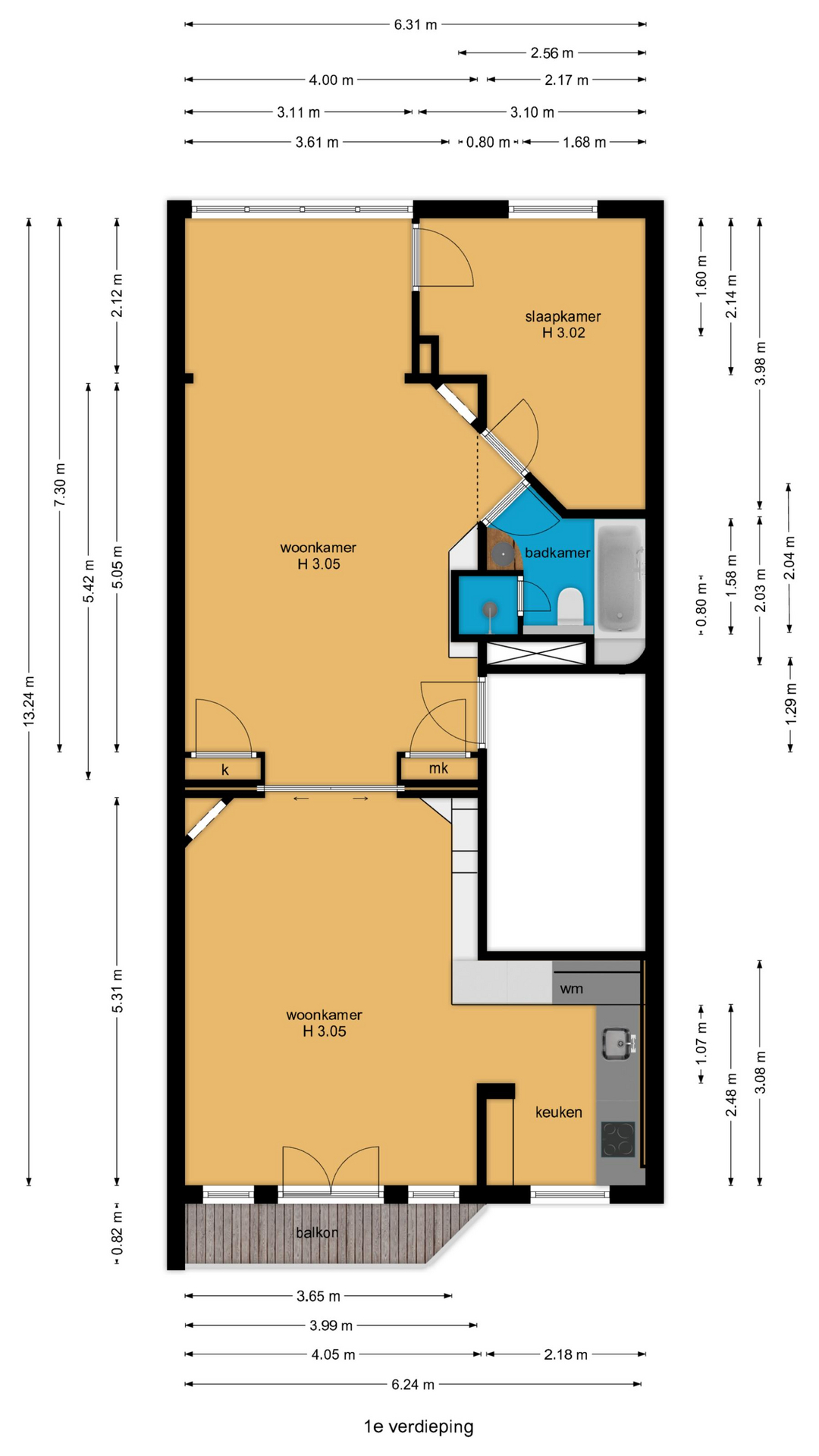
Indeling:
Gezamenlijke entree van het voormalige herenhuis, trap naar de 1e etage, entree appartement, spectaculaire kamers en suite met hoge plafonds en suiteseparatie met vaste kasten, openslaande deuren aan de voorzijde, grote raampartijen en ruime doorgebroken keuken. Aan de achterzijde riante slaapkamer in de achtersuite eveneens met grote raampartijen en uitzicht over de achtergelegen tuinen. De tweede slaapkamer is ruim van formaat en rustig gelegen aan de achterzijde van het gebouw. De tussengelegen badkamer is voorzien van fraai tegelwerk, meubel met waskom, toilet en douche.

Aanvullende informatie:
– ‘s-Gravenhage sectie AK nummer 11847 A-2
– Eigen grond
– Bouwjaar 1914
– Woonoppervlak ca. 73 m²
– Energielabel C
– Volledig voorzien van dubbele beglazing
– Rijks beschermd stadsgezicht Statenkwartier
– Cv-combiketel
– VvE wordt opgestart conform wettelijke eisen (€ 100,- per maand)
– Collectieve opstalverzekering
– Ouderdoms-, niet-bewonings-, materialenclausule van toepassing
– Algemene verkoopvoorwaarden van toepassing
– Oplevering kan indien gewenst snel

  • 73 m2
  • 2

Features Van Beverningkstraat 133A

Overdracht

Vraagprijs€ 435.000,- k.k.
AanvaardingIn overleg

Oppervlaktes en inhoud

Woonoppervlakte73 m2
Inhoud273 m3

Bouw

SoortBovenwoning
BouwvormBestaande bouw
Bouwjaar1914
IsolatievormenDubbelglas
EnergielabelC

Indeling

Aantal verdiepingen1
Aantal kamers3
Aantal slaapkamers2
Aantal badkamers1

Monthly costs

Location Van Beverningkstraat 133A

Voorzieningen

Centraal gelegen informatie over de buurt

Aantal inwoners

In de gemeente

524.882

Leeftijd

in percentages van totaal

Huishoudsamenstelling

in percentages van totaal

45%

20% NL

24%

20% NL

31%

20% NL

Comparable listings