€ 469.000,- k.k.
Klassiek “Zeeheldenkwartier” dubbel bovenhuis van totaal ca. 128 m² woonoppervlak gelegen in een rustige groene straat pal achter het gezellige Anna Paulownaplein met een ruim aanbod aan gezellige kleinschalige horecagelegenheden, op loopafstand van de winkels van de Piet Heinstraat, gunstig gelegen ten opzichte van het Centrum en omringd door andere populaire wijken zoals de Archipelbuurt, Duinoord en het Regentessekwartier.
Dit dubbel bovenhuis is gesitueerd in een voormalig herenhuis en is gelegen in het mooiste gedeelte van het Zeeheldenkwartier. Het object dient compleet (inwendig) gemoderniseerd te worden maar beschikt over hoge ornamenten plafonds, oorspronkelijk houtsnijwerk, paneeldeuren, marmeren schouwen en een achterterras over de volle breedte.
Door middel van de bijgevoegde ‘impressie’ foto’s krijgt u een beter beeld van de potentie van deze prachtige woning.
Indeling:
Entree op de begane grond, trap naar de tweede etage, overloop met toilet, woonkamer eenvoudige te realiseren door samenvoegen van twee riante slaapkamers met aangrenzend terras aan de achterzijde ca. 9 m². De bijgetrokken zijkamer aan de voorzijde kan geschikt worden gemaakt voor het realiseren van een keuken. De huidige badkamer kan relatief eenvoudig geschikt worden gemaakt als werkkamer maar uiteraard zijn meerdere indelingen op deze etage mogelijk.
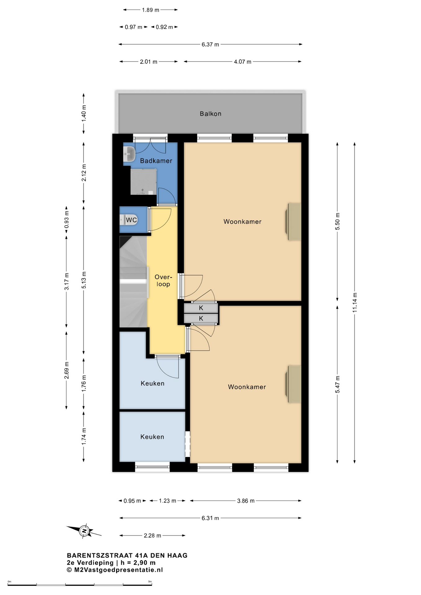
Vanuit de overloop een trap naar de derde etage, deze etage is bij de laatste bewoning gebruikt als afzonderlijk appartement maar het meest voor de hand ligt om hier een slaapetage te realiseren waarbij de huidige indeling met weinig constructieve aanpassingen vrij is in te delen. Gezien het oppervlak van deze verdieping kunnen er 2/3 slaapkamers en een badkamer worden gerealiseerd. De bovengelegen vliering is bij deze etage te trekken om zo een uitzonderlijke nokhoogte van ca. 4 meter te realiseren.
Aanvullende informatie:
– ’s-Gravenhage sectie Z nummer 1263 met nader te noemen index
– Eigen grond
– Bouwjaar 1880
– Gemeentelijk beschermd stadsgezicht
– Energielabel D
– Gedeeltelijk voorzien van dubbel glas
– Gebruiksopp. Wonen 128 m²
– Maandelijkse VvE bijdrage wordt vastgesteld
– Collectieve opstalverzekering
– Externe VvE beheerder
– Cv-combiketel Nefit 2013
– Voorbehoud splitsing van toepassing
– Ouderdoms-, niet-bewonings en materialenclausule van toepassing
– Algemene verkoopvoorwaarden Plink NVM Garantiemakelaars van toepassing
– Projectnotaris Rosenberg Polak
– Oplevering in overleg
- 128 m2
- 3
Features Barentszstraat 41A
Overdracht
| Vraagprijs | € 469.000,- k.k. |
|---|---|
| Aanvaarding | In overleg |
Oppervlaktes en inhoud
| Woonoppervlakte | 128 m2 |
|---|---|
| Inhoud | 469 m3 |
Bouw
| Soort | Bovenwoning |
|---|---|
| Bouwvorm | Bestaande bouw |
| Bouwjaar | 1880 |
| Dak type | Zadeldak |
| Isolatievormen | Gedeeltelijk dubbelglas |
| Energielabel | D |
Indeling
| Aantal verdiepingen | 2 |
|---|---|
| Aantal kamers | 5 |
| Aantal slaapkamers | 3 |
| Aantal badkamers | 2 |
Monthly costs
Location Barentszstraat 41A
Voorzieningen
- Openbare Basisschool Max Velthuijs 521 m Da Costastraat 40 'S-GRAVENHAGE
- Hogeschool der Kunsten Den Haag 2 km Juliana van Stolberglaan 1 S-GRAVENHAGE
- ROC Mondriaan 2 km Leeghwaterplein 72 S-GRAVENHAGE
- Hogeschool der Kunsten Den Haag 2 km Juliana van Stolberglaan 1 S-GRAVENHAGE
- Technische Universiteit Delft 10 km Prometheusplein 1 DELFT
Centraal gelegen informatie over de buurt
Aantal inwoners
In de gemeente
524.882
Leeftijd
in percentages van totaal
Huishoudsamenstelling
in percentages van totaal
63%
20% NL
18%
20% NL
18%
20% NL