Ga naar inhoud

Te koop: woonhuis Antonie Duyckstraat 177 2582 TJ 's-Gravenhage

Plink Garantiemakelaars Den Haag
Contact me

Verkocht

€ 1.100.000,- k.k.

Indrukwekkend 8-kamer “Statenkwartier” herenhuis gelegen op een absolute toplocatie in het mooiste stukje Antonie Duyckstraat met een verrassend zonnige achtertuin van ca. 56 m² en totaal ca. 199 m² woonoppervlak verdeeld over riante kamers en suite met visgraat parketvloer en hoge ornamenten plafonds, slaapkamers met geweldige lichtinval, twee badkamers en moderne keuken met luxe apparatuur. In dit herenhuis zijn opvallende veel originele stijldetails bewaard gebleven zoals ornamenten plafonds, paneeldeuren, fraai houtsnijwerk, glas in loodramen in meerdere kamers en suiteseparatie met inbouwkasten en schuifdeuren.

Dit statige pand is op een absolute toplocatie gelegen in een zijstraat van “De Fred” die al vanaf 1909 bekend staat als de charmantste winkelstraat van Den Haag met een ruim aanbod aan bistro’s, speciaalzaken, traiteurs, landelijke winkelketens, beauty en fashion.

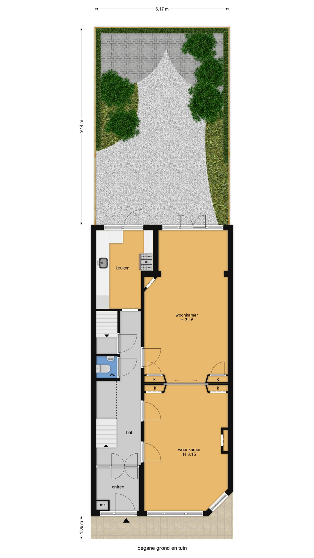
Indeling:
Vestibule met grote marmeren vloerplaten, dubbele tochtdeur, meterkast, karakteristiek tegelwerk en glas in loodramen aan beide zijde. De hal is voorzien van fraaie granietenvloer, ruimte onder de trap, betegeld toilet met fonteintje en trap naar de kelder van ca. 11 m². Vanuit de hal de schitterende kamers en suite met 3.15 meter hoge ornamenten plafonds, spectaculaire lichtinval, visgraat parketvloer, suite separatie met schuifdeuren en vaste kasten, glas in lood bovenlichten, natuurstenen schouwen en openslaande deuren naar de achtertuin. Aan de achterzijde is de luxe keuken gesitueerd die beschikt over een hardstenen werkblad, grote porseleinen spoelbak, luxe mengkraan, handdoekradiator en 5-pits Smeg gasfornuis met brede oven.

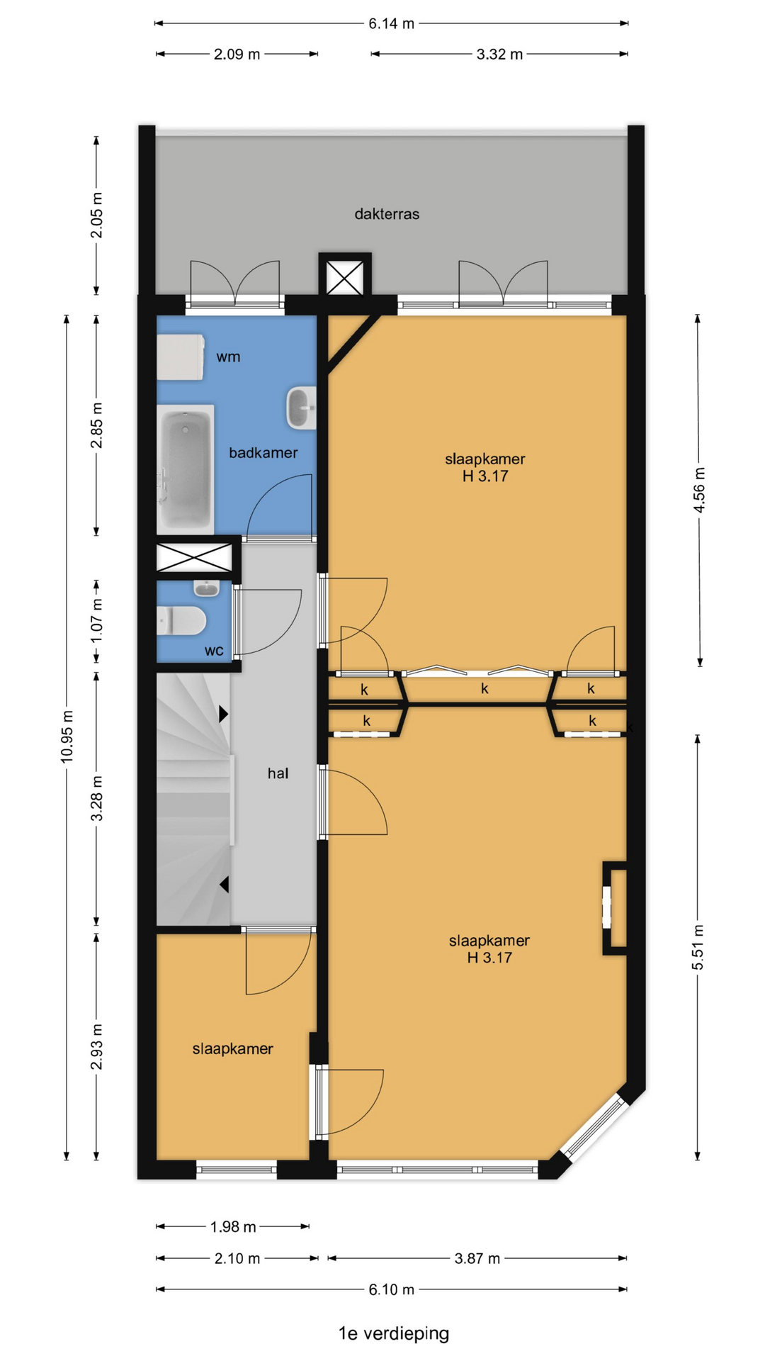
Vanuit de hal de trap naar de eerste etage, overloop met apart toilet, zijkamer aan de voorzijde, schitterende slaapkamer aan de voorzijde met hoog ornamenten plafond en natuurstenen schouw, riante slaapkamer aan de achterzijde eveneens met hoog plafond terras over de volle breedte. De eenvoudige badkamer is ruim van formaat en beschikt over een ligbad en wastafel.

Vanuit de overloop de trap naar de tweede etage, overloop met groot daklicht, voorzijkamer in gebruik als technische ruimte met opstelplaats voor de cv-ketel, slaapkamer aan de voorzijde met voorbalkon, suite separatie met vaste kasten, eenvoudige tweede badkamer met ligbad, toilet en wastafel. Tot slot nog een riante slaapkamer gelegen aan de achterzijde met balkon over de volle breedte.

Aanvullende informatie:
– ’s-Gravenhage sectie AK nummer 4546
– Eigen grond
– Bouwjaar 1913
– Perceelgrootte 152 m²
– Rijks beschermd stadsgezicht
– Energielabel D
– Cv-combiketel Nefit
– Ouderdoms- en materialenclausule van toepassing
– Algemene verkoopvoorwaarde Plink NVM Garantiemakelaars van toepassing
– Oplevering in overleg

  • 199 m2
  • 152 m2
  • 6

Features Antonie Duyckstraat 177

Overdracht

Vraagprijs€ 1.100.000,- k.k.
AanvaardingIn overleg

Oppervlaktes en inhoud

Perceel oppervlakte152 m2
Woonoppervlakte199 m2
Inhoud805 m3

Bouw

SoortHerenhuis
BouwvormBestaande bouw
Bouwjaar1913
Dak typePlat dak
IsolatievormenGedeeltelijk dubbelglas
EnergielabelD

Indeling

Aantal verdiepingen4
Aantal kamers8
Aantal slaapkamers6
Aantal badkamers2

Monthly costs

Location Antonie Duyckstraat 177

Voorzieningen

Centraal gelegen informatie over de buurt

Aantal inwoners

In de gemeente

524.882

Leeftijd

in percentages van totaal

Huishoudsamenstelling

in percentages van totaal

45%

20% NL

24%

20% NL

31%

20% NL

Comparable listings