Ga naar inhoud

Te koop of huur: woonhuis Frankenstraat 6 2582 SK 's-Gravenhage

Plink Garantiemakelaars Den Haag
Contact me

Verkocht

€ 1.395.000,- k.k. of € 5.250,- p/m

Zeer fraai gelegen bijzonder licht monumentaal 9-kamer herenhuis in het mooiste gedeelte van het Statenkwartier, totaal ca. 277 m² woonoppervlak, voorzien van nog vele originele stijldetails, ca. 9 meter diepe zonnige achtertuin pal Zuid Oost met schuur, kelder ca. 13 m², voor- en achterbalkon, gelegen op een kavel van 167 m² eigen grond op ideale locatie midden in de Internationale zone in de directe nabijheid van “Franse” en “Duitse” school, winkels van de “Fred”, openbaar vervoer, uitvalswegen, diverse parken en het strand en de zee van Scheveningen.

Er zijn aanzienlijke verbeteringen aangebracht in 2025, zoals de installatie van HR (++) beglazing inalle ramen aan de voorzijde van het huis, volledige isolatie van de begane grond, inclusief entree, hal en kamers en suite, installatie van een nieuwe Intergas cv-ketel, de zuinigste die beschikbaar is. Door deze maatregelen, samen met eerder aangebrachte HR (++) beglazing in alle ramen aan de achterzijde en dakisolatie, heeft het huis nu een zeer gunstig B-energielabel. De installatie van een hybride warmtepomp samen met zonnepanelen zou het energielabel nog verder kunnen verhogen naar A.

Ook zijn alle ramen aan de voorzijde van het huis van binnen en buiten opnieuw geschilderd en is de marmeren vloer van 20 m2 in de entree en hal op de begane grond volledig gerestaureerd met originele marmeren platen, geïsoleerd en voorzien van vloerverwarming. Het schilderwerk van alle ramen en deuren aan de achterzijde is in het voorjaar van 2024 uitgevoerd.

Dit stijlvolle in 1910 gebouwde pand verkeert in goede staat van onderhoud en beschikt volledig over fraaie visgraat parketvloeren met bies, een heerlijke lichte kamers en suite met openslaande deuren naar de zonnige achtertuin, moderne eetkeuken en 2 badkamers in de stijl van het huis, 7 slaapkamers, 3 moderne toiletten, voor- en achterbalkon alsmede ruime kelder.

Entree begane grond, zeer ruime vestibule met marmeren vloer, ornamenten plafond en wanden, meterkast, origineel betegelde lambrisering en tochtseparatie met geslepen glas naar eveneens ruime gang met marmeren vloer, originele marmeren schouw, origineel plafond, ruimte onder de trap, toilet in stijl van het huis met fontein en deur naar ruime kelder ca. 5.91/3.49×2.96 met originele vloertegels en koekoek, heerlijk lichte kamers en suite met riante maatvoering ca.14.37×4.36 met originele suiteseparatie met schuifdeuren en 4 vaste kasten, erker aan de voorzijde, 2 zwart marmeren schouwen met gas open haard, ornamenten plafonds, convectorput aan de achterzijde en openslaande tuindeuren, grote moderne eetkeuken in de stijl van het huis ca. 4.65/4.08×3.07 met L-vormig natuurstenen aanrechtblad, rvs spoelbak, vaatwasser, “Boretti” fornuis met 5-pits kookplaat en oven, originele schouw met afzuigkap, originele servieskast, marmeren vloertegels en deur naar zonnige achtertuin op het Zuid Oosten met stenen schuur, terrassen en borders.

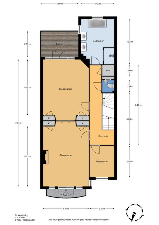
Brede trapopgang naar 1e etage, overloop met origineel plafond, toilet eveneens in stijl met stortbak, fontein en marmeren vloer, diepe vaste kast, 2e kamers en suite ca.11.91×4.31 met suiteseparatie met schuifdeuren en 4 vaste kasten, ornamenten plafonds, zwart marmeren schouw met gas open haard in beide kamers, openslaande deuren naar zowel voor- als achterbalkon en kledingkast in stijl met paneeldeuren, voorzijkamer ca. 2.95×2.31 met origineel plafond, moderne ruime badkamer in stijl ca. 4.24×3.12 met ligbad op pootjes, inloopdouche met glazen deur, 2 vaste wastafels met meubel, planchet en spiegel, marmeren vloertegels en origineel plafond.

Trap naar 2e etage met lichte overloop met groot daklicht, eveneens toilet in stijl met stortbak, fontein en marmeren vloertegels, stookruimte met CV-combiketel, heerlijk lichte voorkamer ca. 5.13×4.35 met ornamenten plafond, marmeren schouw en vaste kast, voorzijkamer ca. 2.85×2034 met vaste kast en dakkapel, grote tussengelegen 2e badkamer ca. 3.45×1.97 met inloopdouche met glazen deur, handdoekradiator, vaste wastafel op zuil met planchet en spiegel, marmeren vloertegels, inbouwverlichting, mechanische ventilatie, opstelplaats wasmachine en droger, en te openen daklicht ten behoeve van de natuurlijke ventilatie, grote achterkamer, ca. 4.56×4.35 met ornamenten plafond ne vaste kast, achterzijkamer ca. 4.19×3.14 met ornamenten plafond en extra zijraam voor de lichtinval.

Aanvullende informatie:
– ’s-Gravenhage AK 3262
– Groot 167 centiare
– Bouwjaar 1910
– Eigen grond
– Rijks beschermd stadsgezicht Statenkwartier
– CV-ketel Intergas 2025
– Volledig voorzien van dubbele beglazing
– Vloerisolatie
– Energielabel B – geldig tot en met 26-05-2035
– Bouwtechnische keuring beschikbaar
– Woonoppervlak conform BBMI 277 m²
– Achtertuin Zuid Oost ca. 53 m²
– Ouderdoms-, niet-bewonings- en materialenclausule van toepassing
– Algemene verkoopvoorwaarden Plink NVM Garantiemakelaars van toepassing
– Oplevering in overleg

  • 277 m2
  • 167 m2
  • 7

Features Frankenstraat 6

Overdracht

Woning prijs€ 1.395.000,- k.k. of € 5.250,- p/m
AanvaardingIn overleg

Oppervlaktes en inhoud

Perceel oppervlakte167 m2
Woonoppervlakte277 m2
Inhoud1.144 m3

Bouw

SoortHerenhuis
BouwvormBestaande bouw
Bouwjaar1910
Dak typeSamengesteld dak
IsolatievormenDakisolatie, Vloerisolatie, HR glas
EnergielabelB

Indeling

Aantal verdiepingen3
Aantal kamers9
Aantal slaapkamers7
Aantal badkamers2

Monthly costs

Location Frankenstraat 6

Voorzieningen

Centraal gelegen informatie over de buurt

Aantal inwoners

In de gemeente

524.882

Leeftijd

in percentages van totaal

Huishoudsamenstelling

in percentages van totaal

45%

20% NL

24%

20% NL

31%

20% NL

Comparable listings