Ga naar inhoud

Te huur: appartement Frederik Hendriklaan 183 2582 CA 's-Gravenhage

Plink Garantiemakelaars Den Haag
Contact me

Verhuurd

€ 3.300,- p/m

Zeer ruim 3-laags bovenhuis van ca. 190 m² met een zonnig terras aan de woonkamer van ca. 35 m². De wonins is in zeer goede staat en zeer gunstig gelegen ten opzichte van de Duitse en Franse school, de Internationale Zone met al haar internationale organisaties alsmede diverse openbaar vervoer.

Entree op begane grond niveau ruime hal ca. 40×2.22 en berging ca. 2.02×1.10.

Trap naar de 1e verdieping, gang, luxe toilet met fonteintje, ruime woonkamer ca. 12.40×4.10 met aan de voorzijde een balkonnetje met uitzicht op “de Fred”, aan de achterzijde openslaande deuren naar het ruime terras van ca. 35 m², luxe en zeer ruime keuken ca. 4.12×2.21/3.21 met veel werkruimte en voorzien van alle apparatuur, voorzijkamer 2.26×2.21.

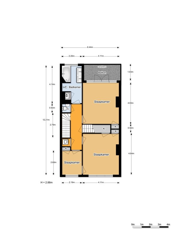
Trap naar de 2e verdieping, gang, luxe toilet, de ruime luxe badkamer ca. 4.14×2.20 heeft een ligbad, aparte douche en wastafelmeubel met dubbele wastafel, de ouderslaapkamer ca. 4.65×4.11 heeft een inbouwkast en openslaande deuren naar het terras ca. 4.11×1.83, ca. voorkamer 4.64×4.11 met 2 inbouwkasten, ca. zijkamer 2.68×2.19, wasruimte.

Trap naar 3e verdieping, grote open ruimte ca. 5.37×3.10, ideaal als studeerkamer, logeerkamer, speel- of tv-kamer, toegang tot de 2e badkamer met douche, toilet en badmeubel met wastafel, voorslaapkamer ca. 3.72×3.10 en berging ca. 5.13×1.81/1.05.

Het appartement is geheel voorzien van mooie houten vloeren en neutrale gordijnen.

Extra informatie:
– Gestoffeerd
– Woonoppervlak conform BBMI 190 m²
– Energielabel C
– Groot terras en 2 balkons
– GEEN GEDEELDE BEWONING

  • 190 m2
  • 6

Features Frederik Hendriklaan 183

Overdracht

Huurprijs€ 3.300,- p/m
AanvaardingPer datum

Oppervlaktes en inhoud

Woonoppervlakte190 m2
Inhoud794 m3

Bouw

SoortBovenwoning
BouwvormBestaande bouw
Bouwjaar1908
IsolatievormenMuurisolatie, Dubbelglas
EnergielabelC

Indeling

Aantal verdiepingen3
Aantal kamers8
Aantal slaapkamers6
Aantal badkamers2

Monthly costs

Location Frederik Hendriklaan 183

Voorzieningen

Centraal gelegen informatie over de buurt

Aantal inwoners

In de gemeente

524.882

Leeftijd

in percentages van totaal

Huishoudsamenstelling

in percentages van totaal

45%

20% NL

24%

20% NL

31%

20% NL

Comparable listings