Ga naar inhoud

Te huur: appartement Jacob Hopstraat 11 2582 TS 's-Gravenhage

Plink Garantiemakelaars Den Haag
Contact me

Verhuurd

€ 2.750,- p/m

Ruim, zeer goed onderhouden dubbel bovenhuis gelegen in het prachtige Statenkwartier vlakbij de Internationale Zone en de Duitse, Franse en Europese scholen. Het appartement heeft een oppervlakte van ca. 133 m, een ruim terras van de woonkamer van ca. 30 m² en een balkon op de 2e verdieping.

Entree op begane grond, hal en trap naar 1e verdieping, overloop met nieuw toilet met fonteintje, garderobe, grote woon- en eetkamer met gashaard omlijst door een klassieke schouw, grote en luxe open U-vormige keuken voorzien van alle apparatuur, openslaande deuren naar groot en zonnig terras, voorzijkamer met inbouwkast.

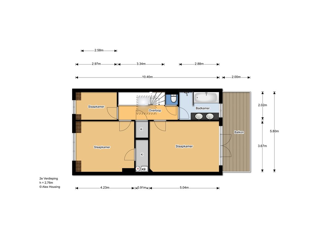
Trap naar 2e verdieping, overloop met dakraam, toilet, kast met wasmachine en droger, luxe badkamer met aparte douche, ligbad en meubel met twee wastafels en laden, ruime ouderslaapkamer met openslaande deuren naar het zonnige balkon, 2e slaapkamer met grote bergkast, voorzijkamer.

Aanvullende informatie:
– Gestoffeerd
– Woonoppervlak conform BBMI 133 m²
– Direct beschikbaar

  • 133 m2
  • 4

Features Jacob Hopstraat 11

Overdracht

Huurprijs€ 2.750,- p/m
AanvaardingDirect

Oppervlaktes en inhoud

Woonoppervlakte133 m2
Inhoud470 m3

Bouw

SoortBovenwoning
BouwvormBestaande bouw
IsolatievormenDubbelglas
EnergielabelC

Indeling

Aantal verdiepingen2
Aantal kamers5
Aantal slaapkamers4
Aantal badkamers1

Monthly costs

Location Jacob Hopstraat 11

Voorzieningen

Centraal gelegen informatie over de buurt

Aantal inwoners

In de gemeente

524.882

Leeftijd

in percentages van totaal

Huishoudsamenstelling

in percentages van totaal

45%

20% NL

24%

20% NL

31%

20% NL

Comparable listings