€ 3.250,- p/m
Fijne eengezinswoning (140 m²) gebouwd in 1998 in de karakteristieke jaren ’30 stijl. De woning is gelegen in “Park Veursehout” een gewilde en rustige woonwijk op korte afstand van diverse uitvalswegen en binnen bereik van alle 4 campussen van de Britse school.
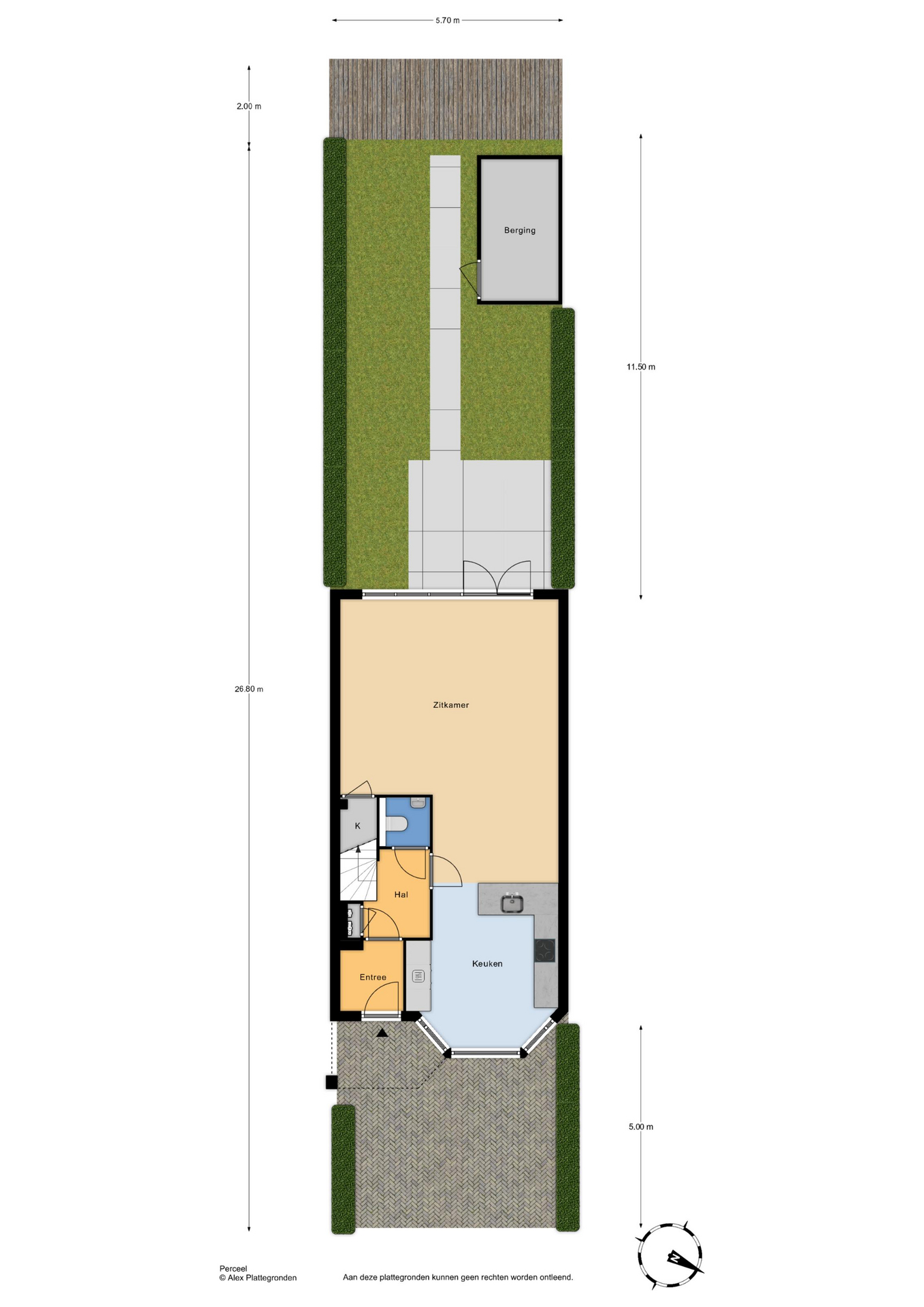
De woning heeft zowel een voortuin als een achtertuin op het ZW met achterom.
Entree, vestibule met deur naar hal, toilet met fonteintje. De woon/eetkamer 6.86/40.67×5.39 is voorzien van parketvloer en een grote bergkast, tiegang tot de heerlijke achtertuin met 2 terrassen en een schuur. De ruime woonkeuken is volledig voorzien van een nieuwe luxe inrichting met inbouwapparatuur en veel opbergruimte.
Op de 1e verdieping een overloop met separaat toilet, badkamer met ligbad, separate douche en wastafelmeubel. Deze verdieping heeft 3 slaapkamers 4.94×3.10, 5.05×3.10 en 2.96×2.23.
Op de 2e verdieping een overloop meyteen ruimte met cv-ketel, wasmachine en droger, een moderne badkamer met douche, toilet en badmeubel met wastafel, een zeer ruime slaapkamer 5.00×3.56 met dakkapel en een inloopkast. De ruimtes onder de schuine dakdelen zorgen voor veel bergruimte.
Een vlizotrap geeft toegang tot de zolderberging 5.41×3.14.
Extra informatie:
– gestoffeerd
– geen gedeelde bewoning
– borg staat gelijk aan één maand huur
- 140 m2
- 4
Features IJsvogellaan 23
Overdracht
| Huurprijs | € 3.250,- p/m |
|---|---|
| Aanvaarding | In overleg |
Oppervlaktes en inhoud
| Woonoppervlakte | 140 m2 |
|---|---|
| Inhoud | 475 m3 |
Bouw
| Soort | Herenhuis |
|---|---|
| Bouwvorm | Bestaande bouw |
| Bouwjaar | 1998 |
| Isolatievormen | Dakisolatie, Muurisolatie, Vloerisolatie, Dubbelglas |
| Energielabel | B |
Indeling
| Aantal verdiepingen | 3 |
|---|---|
| Aantal kamers | 5 |
| Aantal slaapkamers | 4 |
| Aantal badkamers | 2 |
Monthly costs
Location IJsvogellaan 23
Voorzieningen
- Openbare Basisschool de Margriet 689 m Dobbelaan 9 LEIDSCHENDAM
- Hogeschool der Kunsten Den Haag 3 km Juliana van Stolberglaan 1 S-GRAVENHAGE
- ID College 1 km Fluitpolderplein 9 LEIDSCHENDAM
- Hogeschool der Kunsten Den Haag 3 km Juliana van Stolberglaan 1 S-GRAVENHAGE
- Technische Universiteit Delft 10 km Prometheusplein 1 DELFT
Centraal gelegen informatie over de buurt
Aantal inwoners
In de gemeente
74.604