Ga naar inhoud

Te koop: appartement Van Slingelandtstraat 52C 2582 XS 's-Gravenhage

Plink Garantiemakelaars Den Haag
Contact me

Verkocht

€ 675.000,- k.k.

Goed onderhouden, sfeervol en licht 5/6-kamer dubbel bovenhuis op de 2e en 3e etage, totaal ca.138 m² woonoppervlak met zonnig dakterras ca. 9 m², gelegen achter een karakteristieke gevel op uitstekende locatie in rustige straat in het Statenkwartier, midden in de Internationale zone in de directe nabijheid van Franse en Duitse school, de winkels van de “Fred” , strand en zee van Scheveningen, openbaar vervoer en uitvalswegen.

Dit fraaie dubbele bovenhuis beschikt over een doorgebroken living met open keuken met inbouwapparatuur, 4 slaapkamers, een ruime nette badkamer, 2 moderne toiletten en een heerlijk terras. De woning is volledig voorzien van dubbele beglazing.

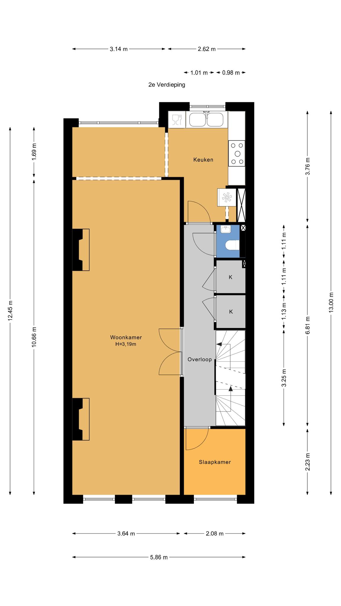
Eigen entree op de begane grond, ruimte voor de trap, overloop op de 1e etage met trap naar de 2e etage welke volledig voorzien is van houten lamelvloeren met brede delen, gang met 2 diepe bergkasten en modern toilet met fontein, wandcloset, mechanische ventilatie, grote witte wandtegels en antracietkleurige plavuizen vloer, heerlijk lichte doorgebroken kamers en suite met ornamenten plafonds, schouw met open haard aan de voorzijde en , serre met inbouwverlichting en doorbraak naar open keuken met aanrecht in L-opstelling, 11/2 rvs spoelbak, close in boiler, vaatwasser, magnetron, 5 pits rvs “Boretti” fornuis met oven en rvs afzuigkap, schouw, losse koel/vriescombinatie en inbouwverlichting.

Trap naar 3e etage eveneens volledig voorzien van houten lamelvloeren met brede delen, lichte overloop met groot daklicht, modern toilet met fontein, wandcloset, mechanische ventilatie, grote witte wandtegels en antracietkleurige plavuizen vloer, grote voorkamer over de volle breedte met ornamenten plafond , schouw en 2 vaste kasten, grote achterkamer met vaste kast en openslaande deuren naar heerlijk L-vormig zonneterras, zijkamer met “Velux” dakraam, nette badkamer met ligbad met douchewand, dubbele wastafel met meubel en spiegel, wandcloset, vloerverwarming, mechanische ventilatie, handdoekradiator, inbouwverlichting, grote witte wandtegels, antracietkleurige plavuizen vloer en “Velux” dakraam, stook= en wasruimte met opstelplaats wasmachine en Cv- combiketel.

Aanvullende informatie;
– ‘s-Gravenhage sectie AK nummer 9460
– A/2 uitmakende een 1/2 aandeel in de gemeenschap
– Bouwjaar 1912
– Eigen grond
– Rijks beschermd stadsgezicht Statenkwartier
– Woonoppervlak conform BBMI 138 m2
– Achterterras ca 9 m2
– Rondom voorzien van dubbele beglazing
– CV combiketel Intergas HRE 2019
– Dakbedekking en diverse goten vernieuwd in 2020
– Voor- en achtergevel nieuw gevoegd in 2021
– Bouwtechnische keuring beschikbaar
– VvE ingeschreven bij KvK
– Collectieve opstalverzekering
– Bijdrage VVE € 150,– per maand
– Ouderdoms-, materialen- en niet bewoningsclausule van toepassing
– Algemene verkoopvoorwaarden Plink Garantiemakelaars van toepassing
– Oplevering in overleg

  • 138 m2
  • 4

Features Van Slingelandtstraat 52C

Overdracht

Vraagprijs€ 675.000,- k.k.
AanvaardingIn overleg

Oppervlaktes en inhoud

Woonoppervlakte138 m2
Inhoud505 m3

Bouw

SoortBovenwoning
BouwvormBestaande bouw
Bouwjaar1912
Dak typePlat dak
IsolatievormenDubbelglas
EnergielabelF

Indeling

Aantal verdiepingen2
Aantal kamers6
Aantal slaapkamers4
Aantal badkamers1

Monthly costs

Location Van Slingelandtstraat 52C

Voorzieningen

Centraal gelegen informatie over de buurt

Aantal inwoners

In de gemeente

524.882

Leeftijd

in percentages van totaal

Huishoudsamenstelling

in percentages van totaal

45%

20% NL

24%

20% NL

31%

20% NL

Comparable listings