€ 375.000,- k.k.
In de gezellige Theresiastraat van het populaire Bezuidenhout gelegen sfeervol appartement met 2 slaapkamers, nette badkamer en keuken, kunststof kozijnen met dubbel glas en erkerraam met wijds uitzicht. Totaal 84 m² aan woonoppervlak.
Deze 1e etage woning is gelegen op een uitstekende locatie in het rustige gedeelte van de Theresiastraat, het Haagse Bos is uw voortuin, dichtbij NS Centraal Station/Laan van NOI en vanwege de korte afstand naar de snelweg A4/A12/A13 ook perfect voor mensen die buiten Den Haag werkzaam zijn.
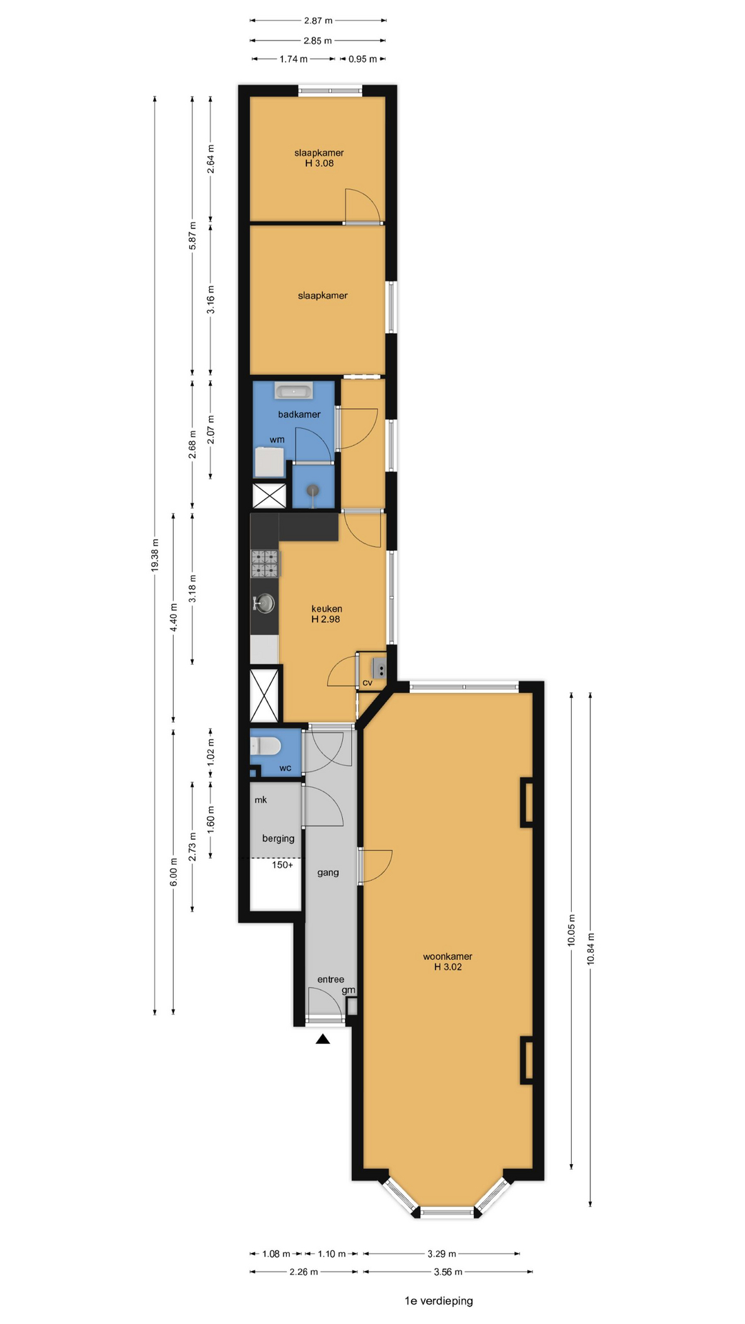
Indeling:
Haagsch portiek, entree appartement, ruimte voor de jassen en grote bergruimte. Gang met toegang tot het separate toilet. Riante woonkamer met voor een erker met vrij uitzicht. In de voormalige woonkamer en suite is er genoeg plek voor een zithoek, een werkplek en een lange eetkamertafel. Keurige keuken met gaskookplaat, koel/vriescombinatie, oven, afzuigkap en vaatwasser. Tussen gelegen badkamer met douche, wasmachine aansluiting, handige kast en modern wastafelmeubel. Ruime master bedroom aan de achterzijde van de woning. Tweede kinder/logeerkamer aan de achterzijde van de woning.
Aanvullende informatie:
– ’s-Gravenhage sectie AU complex 4084 A2
– Eigen grond
– Bouwjaar 1915
– 1/3e aandeel in actieve VvE
– Dakbedekking in 2025 door VvE vervangen
– Maandelijkse VvE bijdrage € 75,-
– Collectieve opstalverzekering
– Ouderdom, materialenclausule, niet zelfbewoningsclausule van toepassing
– Algemene verkoopvoorwaarden Plink NVM Garantiemakelaars van toepassing
– Project notaris van toepassing
– Oplevering in overleg
- 84 m2
- 2
Features Theresiastraat 234
Overdracht
| Vraagprijs | € 375.000,- k.k. |
|---|---|
| Aanvaarding | In overleg |
Oppervlaktes en inhoud
| Woonoppervlakte | 84 m2 |
|---|---|
| Inhoud | 319 m3 |
Bouw
| Soort | Bovenwoning |
|---|---|
| Bouwvorm | Bestaande bouw |
| Bouwjaar | 1915 |
| Isolatievormen | Dubbelglas |
| Energielabel | E |
Indeling
| Aantal verdiepingen | 1 |
|---|---|
| Aantal kamers | 3 |
| Aantal slaapkamers | 2 |
| Aantal badkamers | 1 |
Monthly costs
Location Theresiastraat 234
Voorzieningen
- Nutsbasisschool Bezuidenhout 203 m Merkusstraat 19 'S-GRAVENHAGE
- Hogeschool der Kunsten Den Haag 757 m Juliana van Stolberglaan 1 S-GRAVENHAGE
- ROC Mondriaan 418 m Koningin Marialaan 9 S-GRAVENHAGE
- Hogeschool der Kunsten Den Haag 757 m Juliana van Stolberglaan 1 S-GRAVENHAGE
- Technische Universiteit Delft 10 km Prometheusplein 1 DELFT
Centraal gelegen informatie over de buurt
Aantal inwoners
In de gemeente
524.882
Leeftijd
in percentages van totaal
Huishoudsamenstelling
in percentages van totaal
53%
20% NL
27%
20% NL
20%
20% NL