Ga naar inhoud

Te koop: woonhuis Kranenburgweg 5 2581 XZ 's-Gravenhage

Plink Garantiemakelaars Den Haag
Contact me

Verkocht

€ 950.000,- k.k.

Karakteristiek 9-kamer herenhuis dat uitzonderlijk vrij is gelegen aan de rand van het Geuze- en Statenkwartier met totaal ca. 225 m² woonoppervlak verdeeld over riante kamers en suite met hoge ornamenten plafonds, twee badkamers en zes ruime slaapkamers. De woning is zeer rustig gelegen met vrij uitzicht aan de voorzijde en op loopafstand van het strand van Scheveningen, de gezellige Frederik Hendriklaan en diverse internationale organisaties.

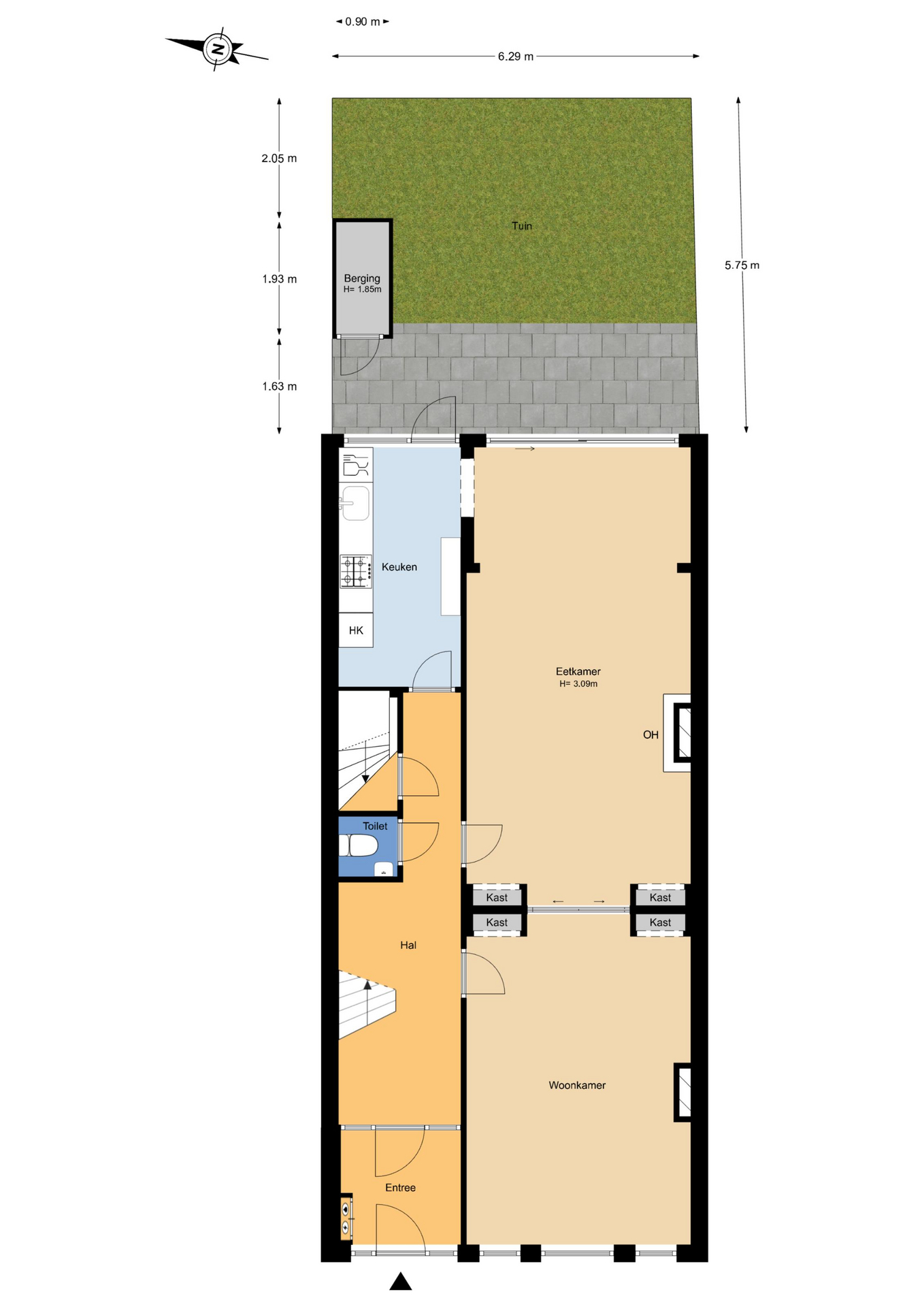
Indeling:
Riante hal met vestibule, tochtdeur naar gang met toilet en trap naar de kelder. Vanuit de hal de kamers en suite met ca. 3,09 meter hoge ornamenten plafonds, suite separatie voorzien van schuifdeuren met glasroedeverdeling, vaste kasten en schuifpui naar achtertuin. De half open keuken voorzien van kunststof werkblad voorzien van 4-pits rvs gaskookplaat, inbouwoven en vaatwasser.

Vanuit de hal de trap naar de eerste etage, overloop met toilet, zijkamer aan de voorzijde, slaapkamer met hoge ornamenten plafonds en fantastisch vrij uitzicht over de Kranenburgweg. Vrij uitzonderlijk is dat de suite separatie ook op deze etage nog intact is. Aan de achterzijde nog een ruime slaapkamer en badkamer voorzien van granieten vloer, handdoekenradiator en wastafel.

Vanuit de overloop de trap naar de tweede etage, overloopt met gunstige lichtinval dankzij groot daklicht. Zijkamer aan de voorzijde met vaste kast, slaapkamer een de voorzijde met vrij uitzicht en gunstige lichtinval, tussenkamer in gebruik als keuken, slaapkamer aan de achterzijde en badkamer met inloopdouche, wastafel en achterbalkon.

Aanvullende informatie:
– ’s-Gravenhage AK 10486
– Groot 124 centiare
– Eigen grond
– Energielabel F
– Bouwjaar 1911
– Rijks beschermd stadsgezicht
– Verwarming middels gaskachels
– Volledig voorzien kunststof kozijnen met dubbel glas
– Ouderdoms- en materialenclausule van toepassing
– Algemene verkoopvoorwaarden Plink Garantiemakelaars van toepassing
– Oplevering in overleg

  • 225 m2
  • 124 m2
  • 6

Features Kranenburgweg 5

Overdracht

Vraagprijs€ 950.000,- k.k.
AanvaardingIn overleg

Oppervlaktes en inhoud

Perceel oppervlakte124 m2
Woonoppervlakte225 m2
Inhoud896 m3

Bouw

SoortHerenhuis
BouwvormBestaande bouw
Bouwjaar1911
Dak typePlat dak
IsolatievormenDubbelglas

Indeling

Aantal verdiepingen3
Aantal kamers9
Aantal slaapkamers6
Aantal badkamers2

Monthly costs

Location Kranenburgweg 5

Voorzieningen

Centraal gelegen informatie over de buurt

Aantal inwoners

In de gemeente

524.882

Comparable listings