€ 895.000,- k.k.
Spectaculair high-end dubbel bovenhuis gelegen achter een monumentale gevel aan het mooiste plein van het populaire Regentessekwartier met totaal ca. 144 m² woonoppervlak verdeeld over royale living met gerestaureerde ornamenten plafonds, zonnige buitenruimte totaal ca. 15 m², een luxe open keuken met eersteklas merkapparatuur, schitterend sanitair met duurzame materialen en vier goed formaat slaapkamers.
Dit oogverblindende dubbele bovenhuis is in 2025 compleet inwendig gerenoveerd met behoud van originele details, gebruik van uitstekende materialen, welgekozen kleuren, geïsoleerde gevels en volledig voorzien van dubbel glas waardoor een zeer rustig en comfortabel pand is gecreëerd.
De locatie op het Koningsplein is uitstekend te noemen en op loopafstand van de gezellige Prins Hendrikstraat met een ruim aanbod aan kleinschalige horeca, beauty en lifestyle. Daarnaast staat het Regentessekwartier bekend om de gunstige ligging ten opzichte van het Centrum, snelweg A12, internationale organisaties maar ook nog op fietsafstand van het strand van Scheveningen.
Vanwege de aangebrachte energiebesparende voorzieningen beschikt dit stijlvolle pand over een gunstig energielabel A.
Indeling:
Eigen entree op de begane grond, trap naar de eerste etage, overloop voorzien van uitzonderlijk ruim toilet voorzien van fraai tegelwerk, meubel en wandcloset. Vanuit de hal de schitterende kamers en suite waar een unieke harmonie is ontstaan tussen modern wooncomfort en karakteristieke details Deze suites beschikken over gerestaureerde ornamenten plafonds, suiteseparatie met vaste kasten en visgraat parketvloer.
Aan de achterzijde de eyecatcher van dit schitterende pand: een harmonicapui met glazen doorvalbeveiliging die perfect op de middag-/avondzon is gelegen. Ideaal om als zitgedeelte te gebruiken als aanvulling op de woonkeuken. De open keuken beschikt over een kookeiland voorzien van composiet werkblad, wijnklimaatkast, inductiekookplaat met geïntegreerde afzuiging, goudkleurige Quooker en vaatwasser. Het wandgedeelte is voorzien van Siemens combiovens, inbouwkoelkast, inbouwvriezer en nis met composiet werkblad. In de hoek nog een openslaande deur naar klein achterbalkon.
Aan de voorzijde een ruime suite met gerestaureerde ornamenten plafonds en vrij uitzicht over het statige Koningsplein. De zijkamer aan de voorzijde is uitzonderlijk ruim te noemen en perfect te gebruiken als werkkamer of als gastenkamer.
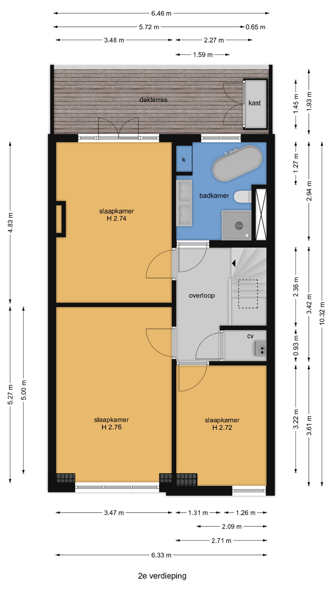
Vanuit de hal de trap naar de tweede etage, overloop voorzien van groot daklicht waardoor een zeer gunstige lichtinval is ontstaan. Aan de achterzijde de hoofdslaapkamer voorzien van openslaande deuren naar achterterras van ca. 13 m² over de volle breedte van de woning. Aan de voorzijde nog twee ruime slaapkamers waar in beide gemakkelijk een 2-persoons bed en kast geplaatst kan worden. De stijlvolle badkamer is aan de achterzijde gesitueerd en voorzien van fraai tegelwerk, meubel met wastafel, vrijstaand ligbad, inloopdouche met glazen wand, toilet en handdoekradiator. Tot slot op deze etage de technische ruimte met cv-ketel en opstelplaats voor wasmachine en droger.
Aanvullende informatie:
– ’s-Gravenhage sectie W nummer 4326 A-2
– Eigen grond
– Bouwjaar 1900
– Rijks beschermd stadsgezicht
– Energielabel A
– 2/3 aandeel in VvE
– Maandelijkse VvE-bijdrage € 200,-
– Collectieve opstalverzekering
– Volledig voorzien van dubbel glas
– Voorzien van fraaie houten vloeren
– Nieuwe cv-combiketel
– Ouderdoms- en niet-bewoningsclausule van toepassing
– Algemene verkoopvoorwaarden Plink Garantiemakelaars van toepassing
– Projectnotaris Ellens & Lentze
– Oplevering in overleg
- 144 m2
- 4
Features Koningsplein 13
Overdracht
| Vraagprijs | € 895.000,- k.k. |
|---|---|
| Aanvaarding | In overleg |
Oppervlaktes en inhoud
| Woonoppervlakte | 144 m2 |
|---|---|
| Inhoud | 533 m3 |
Bouw
| Soort | Bovenwoning |
|---|---|
| Bouwvorm | Bestaande bouw |
| Bouwjaar | 1900 |
| Isolatievormen | Dubbelglas |
| Energielabel | A |
Indeling
| Aantal verdiepingen | 2 |
|---|---|
| Aantal kamers | 6 |
| Aantal slaapkamers | 4 |
| Aantal badkamers | 1 |
Monthly costs
Location Koningsplein 13
Voorzieningen
- Openbare Basisschool Max Velthuijs 523 m Da Costastraat 40 'S-GRAVENHAGE
- De Haagse Hogeschool 3 km Johanna Westerdijkplein 75 S-GRAVENHAGE
- ROC Mondriaan 3 km Leeghwaterplein 72 S-GRAVENHAGE
- De Haagse Hogeschool 3 km Johanna Westerdijkplein 75 S-GRAVENHAGE
- Technische Universiteit Delft 10 km Prometheusplein 1 DELFT
Centraal gelegen informatie over de buurt
Aantal inwoners
In de gemeente
524.882
Leeftijd
in percentages van totaal
Huishoudsamenstelling
in percentages van totaal
57%
20% NL
21%
20% NL
22%
20% NL