€ 875.000,- k.k.
Elegante bel-etage met souterrain gelegen in het mooiste stukje Koningin Emmakade, tussen de 2e Van Blankenburgstraat en het Sweelinckplein, met de achtertuin op het zonnige zuidwesten en vrije doorkijk aan de achterzijde waardoor er een zeer spectaculaire lichtinval ontstaat.
Deze stijlvolle benedenwoning beschikt totaal over ca. 171 m2 woonoppervlak verdeeld over karakteristieke kamers met ornamenten plafonds, luxe keuken met inbouwapparatuur, drie riante slaapkamers en modern sanitair.
De locatie in hartje Duinoord is eveneens perfect te noemen, om de hoek van de gezellige Reinkenstraat met een ruim aanbod aan kleinschalige horeca, traiteurs en speciaalzaken. Daarnaast is dit bijzondere object ook zeer strategisch gelegen ten opzichte van het centrum, internationale organisaties, het strand, scholen en openbaar vervoer.
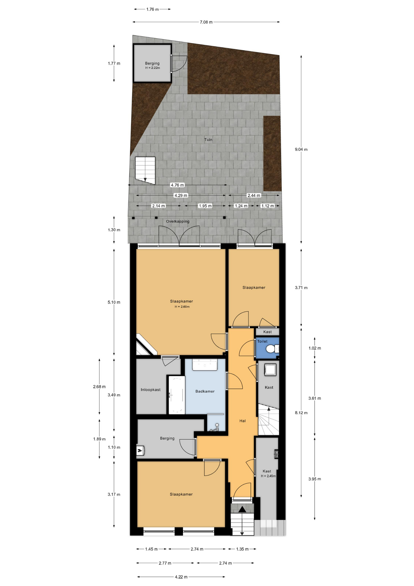
Indeling:
Trap naar de bel-etage, entree appartement, hal voorzien van apart toilet. Vanuit de hal de karakteristieke woonkamer voormalig en suite met hoge ornamenten plafonds, glas in lood bovenlichten, parketvloer, open haard en veel privacy dankzij vrije ligging aan de achterzijde. De moderne keuken is voorzien van een composiet werkblad, 5-pits gaskookplaat, afzuigkap, vaatwasser, koelkast, vriezer, combimagnetron en hoog model oven. Vrij kenmerkend voor deze bouw is het balkon aan de bel-etage waarbij de huidige eigenaren een vaste trap naar de achtertuin hebben laten plaatsen.
Vanuit de hal de trap naar het souterrain, gang met vaste kasten (inclusief wasmachineopstelplaats), ruime slaapkamer aan de voorzijde met grote raampartijen, hoge plafonds en niet ver onder het maaiveld gelegen. De riante hoofdslaapkamer is rustig gelegen aan de achterzijde van de woning en beschikt over openslaande deuren naar de achtertuin. De derde slaapkamer is eveneens aan de achterzijde en ruim van formaat. De tussengelegen badkamer is voorzien van hoogwaardig tegelwerk, ligbad, inloopdouche, handdoekradiator en dubbele wastafelmeubel.
Aanvullende informatie:
– ās-Gravenhage sectie N nummer 7731 A-1
– Eigen grond
– Bouwjaar 1896
– Energielabel C
– Rijks beschermd stadsgezicht
– Grotendeels voorzien dubbele beglazing
– Glas in lood voorzien van voorzetramen
– Cv-combiketel Remeha 2017
– 1/2e aandeel in actieve VvE
– Collectieve opstalverzekering
– Maandelijkse VvE-bijdrage ⬠150,-
– Ouderdoms- en materialenclausule van toepassing
– Oplevering in overleg
– Algemene verkoopvoorwaarden Plink Garantiemakelaars van toepassing
- 171 m2
- 3
Features Koningin Emmakade 178
Overdracht
| Vraagprijs | € 875.000,- k.k. |
|---|---|
| Aanvaarding | In overleg |
Oppervlaktes en inhoud
| Woonoppervlakte | 171 m2 |
|---|---|
| Inhoud | 649 m3 |
Bouw
| Soort | Benedenwoning |
|---|---|
| Bouwvorm | Bestaande bouw |
| Bouwjaar | 1896 |
| Isolatievormen | Voorzetramen, Grotendeels dubbelglas |
| Energielabel | C |
Indeling
| Aantal verdiepingen | 2 |
|---|---|
| Aantal kamers | 5 |
| Aantal slaapkamers | 3 |
| Aantal badkamers | 1 |
Monthly costs
Location Koningin Emmakade 178
Voorzieningen
- Da Costa School Christelijke Basisonderwijs 84 m Hollanderstraat 21 'S-GRAVENHAGE
- Hotelschool The Hague 3 km Brusselselaan 2 S-GRAVENHAGE
- ROC Mondriaan 3 km Leeghwaterplein 72 S-GRAVENHAGE
- Hotelschool The Hague 3 km Brusselselaan 2 S-GRAVENHAGE
- Technische Universiteit Delft 11 km Prometheusplein 1 DELFT
Centraal gelegen informatie over de buurt
Aantal inwoners
In de gemeente
524.882
Leeftijd
in percentages van totaal
Huishoudsamenstelling
in percentages van totaal
50%
20% NL
24%
20% NL
25%
20% NL