Ga naar inhoud

Te koop: appartement Jacob Vermijstraat 28 2584 XM 's-Gravenhage

Plink Garantiemakelaars Den Haag
Contact me

Verkocht

€ 295.000,- k.k.

Charmante 3-kamer parterre gelegen achter een karakteristieke gevel uit 1895 met totaal ca. 60 m² woonoppervlak op een perfecte locatie in hartje Scheveningen pal achter de vernieuwde Badhuisstraat en op loopafstand van het Westbroekpark, strand, zee en boulevard alsmede openbaar vervoer en uitvalswegen.

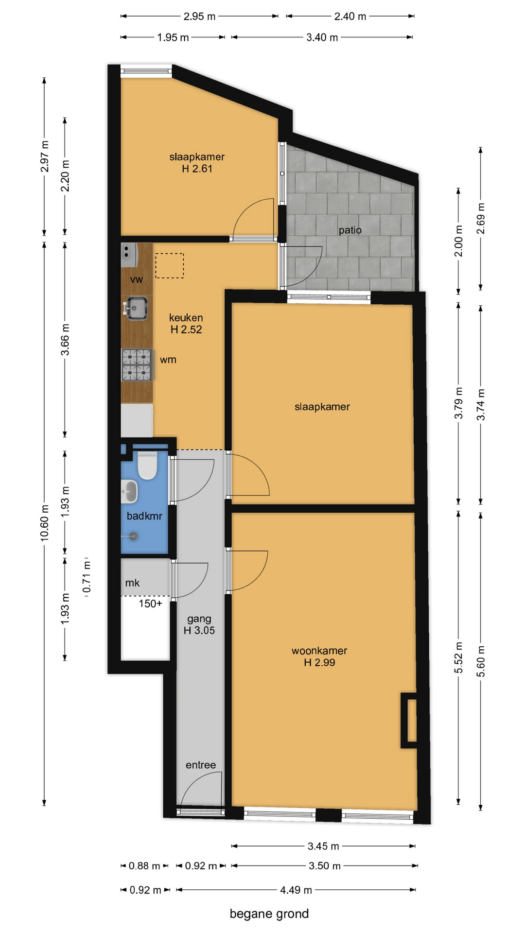
Indeling:
Eigen entree met lange hal, trapkast met elektrische installatie, nette badkamer met inloopdouche, wastafel en toilet. Vanuit de hal de woonkamer aan de voorzijde met goede lichtinval, schouw en bijna 3 meter hoog plafond. De ruime eerste slaapkamer is rustig gelegen en grenst aan de patio, de half open keuken is voorzien van werkblad, 4-pits gaskookplaat, inbouwmagnetron, gootsteen, koelkast, vaatwasser, cv-ketel en deur naar patio. De tweede slaapkamer is eveneens aan de achterzijde gelegen en grenst aan de patio.

Aanvullende informatie:
– ’s-Gravenhage AG 3678 A-1
– 4/10e aandeel
– Eigen grond
– Bouwjaar 1895
– Gemeentelijk Beschermd stadsgezicht
– Energielabel D
– Geen actieve VvE
– Ouderdoms-, materialen- en niet bewoningsclausule van toepassing
– Algemene verkoopvoorwaarden Plink NVM Garantiemakelaars van toepassing
– Projectnotaris van toepassing

  • 60 m2
  • 2

Features Jacob Vermijstraat 28

Overdracht

Vraagprijs€ 295.000,- k.k.
AanvaardingIn overleg

Oppervlaktes en inhoud

Woonoppervlakte60 m2
Inhoud218 m3

Bouw

SoortBenedenwoning
BouwvormBestaande bouw
Bouwjaar1895
IsolatievormenGedeeltelijk dubbelglas
EnergielabelD

Indeling

Aantal verdiepingen1
Aantal kamers3
Aantal slaapkamers2
Aantal badkamers1

Monthly costs

Location Jacob Vermijstraat 28

Voorzieningen

Centraal gelegen informatie over de buurt

Aantal inwoners

In de gemeente

524.882

Leeftijd

in percentages van totaal

Huishoudsamenstelling

in percentages van totaal

50%

20% NL

24%

20% NL

27%

20% NL

Comparable listings