€ 175.000,- k.k.
Uniek 2-kamer jaren ’30 appartement met zonnig achterbalkon gelegen aan een brede laan in het Laakkwartier op de rand met Rijswijk en zeer geschikt voor starters die centraal in Den Haag willen wonen. De locatie is strategisch gelegen ten opzichte van de Haagse binnenstad, de Binckhorst, Rijkswegen A4/A13, het Von Fisennepark, de Haagse Hogeschool en het Rijswijkse Bos.
Vanwege de aangebrachte energiebesparende voorzieningen beschikt deze starterswoning over een gunstig energielabel A.
Indeling – rustig gelegen aan de achterzijde van het complex:
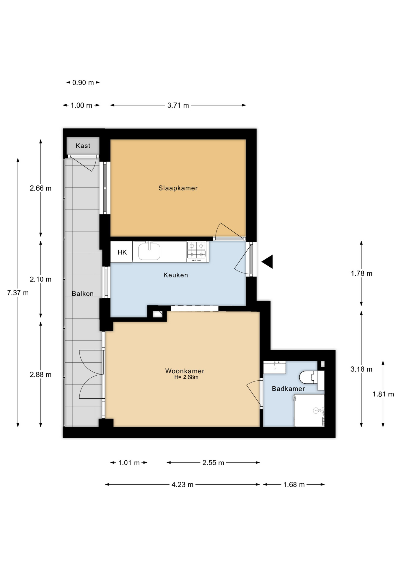
Gezamenlijke entree, trap naar de tweede etage, entree appartement, woonkamer met achterbalkon over de volle breedte pal zuidwest met vrij uitzicht over de achtergelegen tuinen, grote raampartijen met dubbel glas aan de achterzijde, half open keuken voorzien van gaskookplaat, wasemkap, gootsteen en koel-/vriescombinatie. Vanuit de woonkamer de fraai betegelde badkamer voorzien van badkamermeubel met wastafel, wandcloset en inloopdouche met glazen wand. De slaapkamer is goed van formaat en eveneens rustig aan de achterzijde van het complex gelegen.
Aanvullende informatie:
– ’s-Gravenhage sectie AI 8895 A-8
– Eigen grond
– Bouwjaar 1938
– Gemeentelijk beschermd stadsgezicht
– Woonoppervlak ca. 34 m²
– Energielabel A
– Volledig voorzien van dubbele beglazing
– Maandelijkse VvE-bijdrage € 125,- incl. voorschot water, internet en stookkosten
– Collectieve opstalverzekering
– Algemene verkoopvoorwaarden Plink NVM Garantiemakelaars van toepassing
– Ouderdoms-, materialen-en niet-bewoningsclausule van toepassing
– Projectnotaris van toepassing
- 34 m2
- 1
Features De Genestetlaan 159A
Overdracht
| Vraagprijs | € 175.000,- k.k. |
|---|---|
| Aanvaarding | In overleg |
Oppervlaktes en inhoud
| Woonoppervlakte | 34 m2 |
|---|---|
| Inhoud | 120 m3 |
Bouw
| Soort | Portiekflat |
|---|---|
| Bouwvorm | Bestaande bouw |
| Bouwjaar | 1938 |
| Isolatievormen | Dubbelglas |
| Energielabel | A |
Indeling
| Aantal verdiepingen | 1 |
|---|---|
| Aantal kamers | 2 |
| Aantal slaapkamers | 1 |
| Aantal badkamers | 1 |
Monthly costs
Location De Genestetlaan 159A
Voorzieningen
- Obs Dr Willem Drees 207 m Bresterstraat 15 'S-GRAVENHAGE
- De Haagse Hogeschool 995 m Johanna Westerdijkplein 75 S-GRAVENHAGE
- ROC Mondriaan 943 m Leeghwaterplein 72 S-GRAVENHAGE
- De Haagse Hogeschool 995 m Johanna Westerdijkplein 75 S-GRAVENHAGE
- Technische Universiteit Delft 7 km Prometheusplein 1 DELFT
Centraal gelegen informatie over de buurt
Aantal inwoners
In de gemeente
524.882