Ga naar inhoud

Te koop: woonhuis Buijs Ballotstraat 83 2563 ZK 's-Gravenhage

Plink Garantiemakelaars Den Haag
Contact me

Verkocht

€ 825.000,- k.k.

Charmant herenhuis met een woonoppervlak van ca. 168 m² gelegen in een van de leukste en kindvriendelijke straten van het Valkenboskwartier. De woning is voorzien van vele originele details zoals glas-in-lood, paneeldeuren en schoorsteenmantels.

Vanwege de aangebrachte energiebesparende voorzieningen beschikt het appartement over een gunstig energielabel B.

Entree met fraaie glas-in- ramen, vestibule met granito vloer en meterkast, deur naar ruime kelder van ca. 22 m², tochtdeur naar gang met toilet met fonteintje, sfeervolle en zeer lichte kamers en suite met visgraatparketvloer, separatie voorzien van schuifdeuren en glas-in-lood ramen, 4 vaste kasten en 2 schoorsteenmantels, openslaande deuren naar zonnige achtertuin op NW van ca. 35m². De keuken is voorzien van een handgemaakte keukeninrichting en voorzien van alle aansluitingen, doorgang naar de bijkeuken.

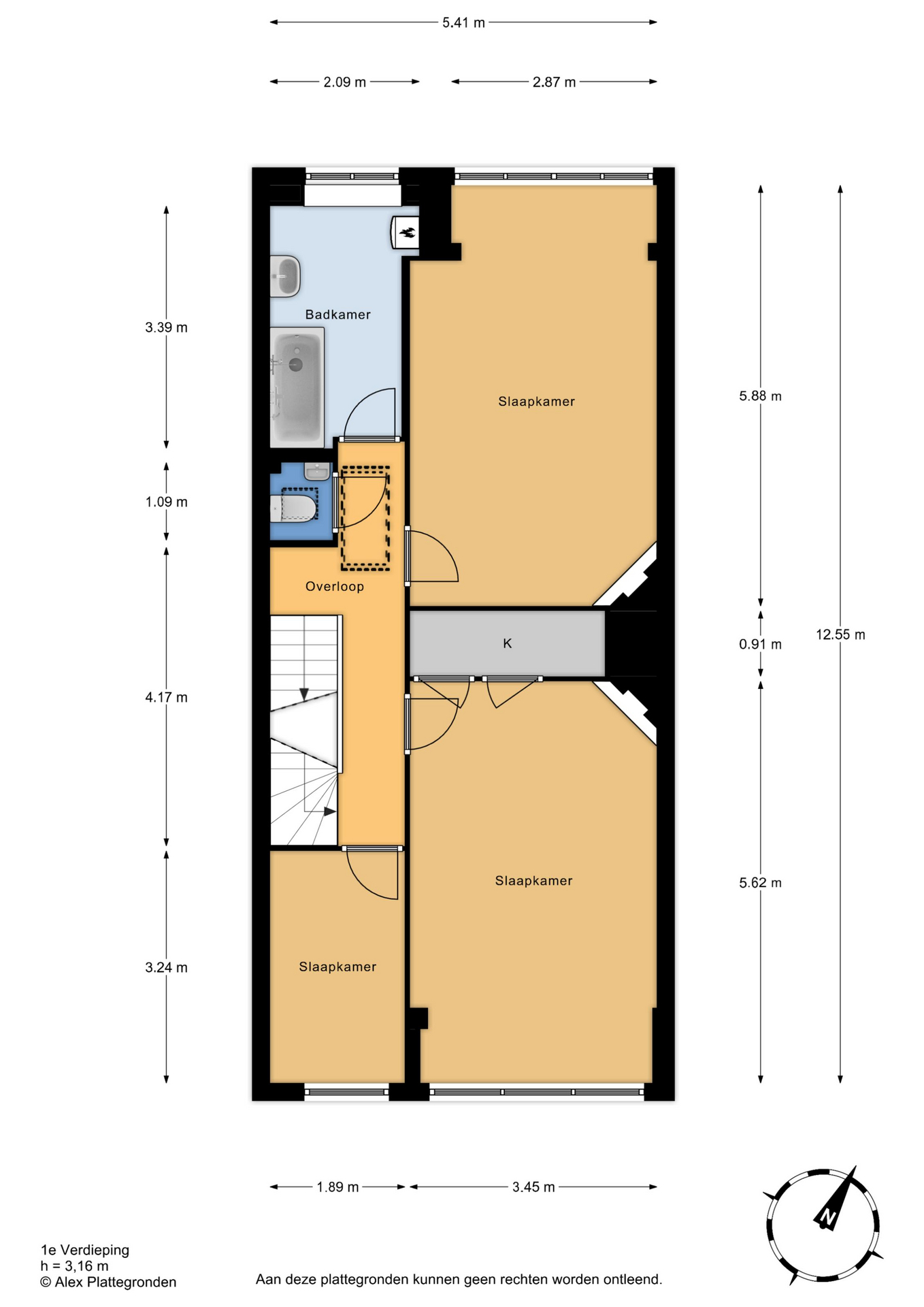
Trap naar 1e etage, overloop, toilet met fonteintje, ruime badkamer met ligbad/douche en vaste wastafel, vloerverwarming en opstelplaats CV-ketel, zeer ruime achterslaapkamer, eveneens ruime voorslaapkamer met grote inbouwkast, voorzijkamer.

Trap naar 2e etage, overloop, grote en zeer lichte kamer, thans in gebruik als atelier, met grote ingebouwde kast, voorzijkamer en luik naar dak.

Aanvullende informatie:
– ’s-Gravenhage AM 2400
– Perceeloppervlakte 114 m²
– Eigen grond
– Bouwjaar 1910
– Woonoppervlakte conform BBMI ca. 168,3 m²
– Kelder ca. 22.2 m²
– Energielabel B
– Vloer-, muur- en dakisolatie
– Dubbel glas
– 10 zonnepanelen
– CV-Ketel Nefit Trendline HRC 30 CW5 II van 2020
– Gemeentelijk Beschermd stadsgezicht Valkenboskwartier
– Ouderdoms- en materialenclausule va toepassing
– Algemene verkoopvoorwaarden Plink Makelaars van toepassing
– Oplevering 26 juni 2025

  • 168 m2
  • 114 m2
  • 5

Features Buijs Ballotstraat 83

Overdracht

Vraagprijs€ 825.000,- k.k.
AanvaardingPer datum

Oppervlaktes en inhoud

Perceel oppervlakte114 m2
Woonoppervlakte168 m2
Inhoud729 m3

Bouw

SoortHerenhuis
BouwvormBestaande bouw
Bouwjaar1910
IsolatievormenDakisolatie, Muurisolatie, Vloerisolatie, Dubbelglas, HR glas
EnergielabelB

Indeling

Aantal verdiepingen4
Aantal kamers7
Aantal slaapkamers5
Aantal badkamers1

Monthly costs

Location Buijs Ballotstraat 83

Voorzieningen

Centraal gelegen informatie over de buurt

Aantal inwoners

In de gemeente

524.882

Leeftijd

in percentages van totaal

Huishoudsamenstelling

in percentages van totaal

53%

20% NL

21%

20% NL

26%

20% NL

Comparable listings