Ga naar inhoud

Te koop: appartement Antonie Duyckstraat 114A 2582 TP 's-Gravenhage

Plink Garantiemakelaars Den Haag
Contact me

Verkocht

€ 325.000,- k.k.

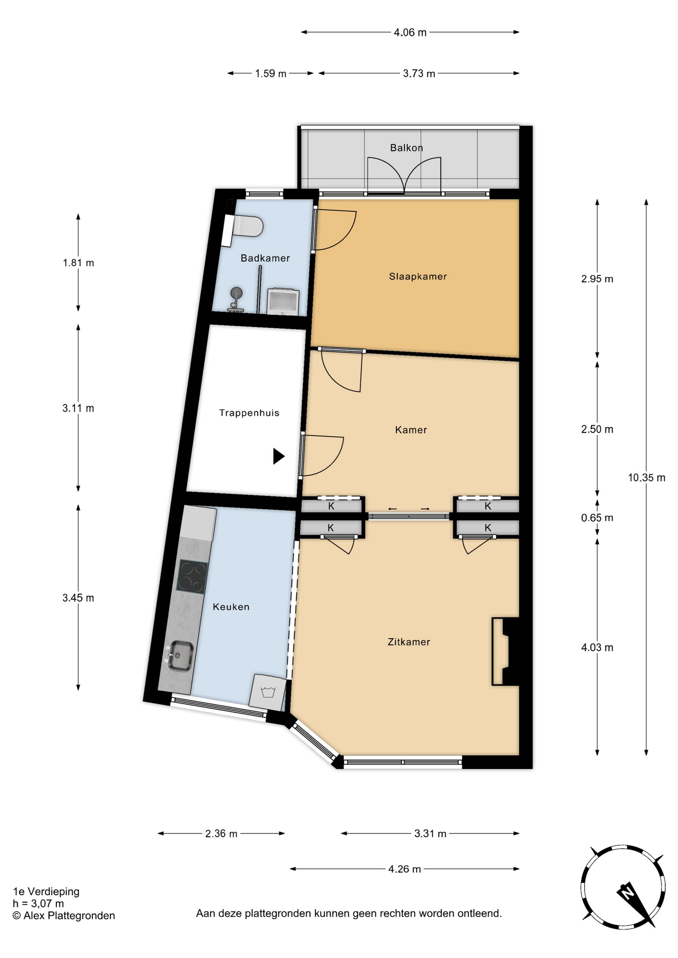
Sfeervol goed onderhouden 3 kamer 1e etage appartement totaal ca 53 m2 woonoppervlak met heerlijk zonnig achterbalkon pal Zuid West. Het appartement is gelegen pal om de hoek van de Frederik Hendriklaan in rustige karakteristieke straat.

De locatie in hartje Statenkwartier is uitstekend te noemen, midden in de internationale zone en pal om de hoek van ā€œde Fredā€ met een ruim aanbod aan traiteurs, speciaalzaken, landelijke winkelketens, beauty en fashion.

Centrale entree op de begane grond, ruimte voor de trap met meterkast, trap naar 1e etage welke geheel voorzien is van houten lamelvloeren met brede delen, entree appartement, kamers en suite met originele schuifseparatie met schuifdeuren met glas in lood en 4 vaste kasten, zwart marmeren schouw, thermostaat, intercom en erker met vrij uitzicht. Voorts open moderne keuken met natuurstenen aanrecht, rvs spoelbak, rvs kookplaat, rvs afzuigkap, vaatwasser, en koelkast met vriesvak.

Fijne lichte achterkamer met openslaande deuren naar het zonnige balkon pal Zuid West met vrij uitzicht over het groene binnenterrein en toegang tot moderne badkamer met inloopdouche met regen–en handdouche, drain en glazen wand, meubel met vaste wastafel en spiegelkast, handdoekradiator, wandcloset, grote witte wandtegels, antraciet kleurige vloertegels, mechanische ventilatie en inbouwverlichting.

– ‘s-Gravenhage sectie AK nummer 11792
– A2 69/184 aandeel
– Eigen grond
– Bouwjaar 1912
– Rijks beschermd stadsgezicht Statenkwartier
– 53 m2 woonoppervlak conform BBMI
– Volledig voorzien van dubbele beglazing
– Cv-combiketel Remeha Avanta 2012
– VVE € 144,57 per maand
– VVE in opstartfas4e
– MJOP beschikbaar
– Energielabel E t/m 18/06/2034
– Ouderdoms-, niet-bewonings- en materialenclausule van toepassing
– Algemene verkoopvoorwaarden Plink Garantiemakelaars van toepassing
– Projectnotaris van de Velde
– Oplevering direct

  • 53 m2
  • 1

Features Antonie Duyckstraat 114A

Overdracht

Vraagprijs€ 325.000,- k.k.
AanvaardingDirect

Oppervlaktes en inhoud

Woonoppervlakte53 m2
Inhoud196 m3

Bouw

SoortBovenwoning
BouwvormBestaande bouw
Bouwjaar1912
Dak typePlat dak
IsolatievormenDubbelglas
EnergielabelE

Indeling

Aantal verdiepingen1
Aantal kamers3
Aantal slaapkamers1
Aantal badkamers1

Monthly costs

Location Antonie Duyckstraat 114A

Voorzieningen

Centraal gelegen informatie over de buurt

Aantal inwoners

In de gemeente

524.882

Leeftijd

in percentages van totaal

Huishoudsamenstelling

in percentages van totaal

45%

20% NL

24%

20% NL

31%

20% NL

Comparable listings