Ga naar inhoud

Te koop: woonhuis Van Weede van Dijkveldstraat 60J 2582 KX 's-Gravenhage

Plink Garantiemakelaars Den Haag
Contact me

Verkocht

€ 1.095.000,- k.k.

Modern 3-laags stadsherenhuis met totaal ca. 178 m² woonoppervlak en ca. 12 meter diepe zonnige achtertuin pal zuidwest waarbij het comfort van een energielabel B samengaat met een perfecte ligging in het karakteristieke Statenkwartier.

Dit heerlijke familiehuis is in 1996 in klassieke stijl gebouwd en beschikt over een riante kamers en suite met hoge plafonds en gunstige lichtinval, een eenvoudig door te breken keuken, twee moderne badkamers en vijf uitzonderlijk ruime slaapkamers.

Het betreft een ronduit sublieme locatie in een rustige zijstraat van de gezellige Frederik Hendriklaan met een ruim aanbod aan winkels, kleinschalige horeca, speciaalzaken en traiteurs. Het populaire Statenkwartier staat daarnaast bekend om haar monumentale panden en de centrale ligging ten opzichte van internationale organisaties, het strand van Scheveningen en het Kunstmuseum Den Haag.

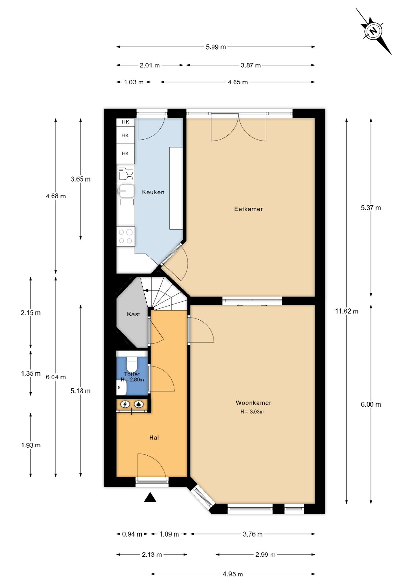
Indeling:
Riante hal met meterkast, toilet met fonteintje en garderobekast onder de trap. Vanuit de hal de woon-/eetkamer en suite met meer dan 3 meter hoog plafond, grote raampartijen aan de achterzijde met spectaculaire lichtinval en openslaande deuren naar uitzonderlijk diepe achtertuin van totaal ca. 75 m², perfect gelegen op het zuidwesten en voorzien van achterom en stenen schuur. De keuken is eveneens aan de achterzijde gelegen en voorzien van hardstenen werkblad, inbouwoven, inbouwmagnetron, koel-/vriescombinatie, inductiekookplaat en Miele vaatwasser.

Vanuit de hal de trap naar de eerste etage, riante hoofdslaapkamer aan de achterzijde over de volle breedte met balkon en tweede goed formaat slaapkamer aan de voorzijde eveneens met eigen balkon. De badkamer op deze etage is voorzien van keurig tegelwerk, dubbele wastafel, toilet, douche cabine, ligbad en natuurlijk licht. Het valt op dat deze eerste etage over vrijwel dezelfde hoge plafonds beschikt als de begane grondvloer wat bijdraagt aan een zeer ruimtelijke beleving.

Vanuit de overloop de trap naar de tweede etage, overloop met groot rond daklicht, deze etage is efficiënt ingedeeld met nog drie slaapkamers waar in alle drie gemakkelijk een 2-persoonsbed past. Verder op deze etage de technische ruimte en de tweede badkamer met douchecabine, toilet, wastafel en berging in de knieschot.

Aanvullende informatie:
– ’s-Gravenhage AK 10486
– Groot 175 centiare
– Energielabel B
– Bouwjaar 1996
– Tuin met achterom
– Rijks beschermd stadsgezicht
– Erfpacht eeuwigdurend afgekocht
– Type eindwoning met slechts aan één zijde belendingen
– Dakbedekking vervangen in 2023 met PIR80 isolatie
– Dak geïsoleerd in 2023
– Cv-combiketel Intergas 2010
– Volledig voorzien van dubbel glas
– Voorzien van MV-box
– Alarminstallatie aanwezig
– Ouderdomsclausule van toepassing
– Niet-bewoningsclausule van toepassing
– Algemene verkoopvoorwaarden Plink Garantiemakelaars van toepassing
– Oplevering kan indien gewenst snel

  • 178 m2
  • 175 m2
  • 5

Features Van Weede van Dijkveldstraat 60J

Overdracht

Vraagprijs€ 1.095.000,- k.k.
AanvaardingIn overleg

Oppervlaktes en inhoud

Perceel oppervlakte175 m2
Woonoppervlakte178 m2
Inhoud671 m3

Bouw

SoortHerenhuis
BouwvormBestaande bouw
Bouwjaar1996
Dak typePlat dak
IsolatievormenDakisolatie, Dubbelglas
EnergielabelB

Indeling

Aantal verdiepingen3
Aantal kamers7
Aantal slaapkamers5
Aantal badkamers2

Monthly costs

Location Van Weede van Dijkveldstraat 60J

Voorzieningen

Centraal gelegen informatie over de buurt

Aantal inwoners

In de gemeente

524.882

Leeftijd

in percentages van totaal

Huishoudsamenstelling

in percentages van totaal

45%

20% NL

24%

20% NL

31%

20% NL

Comparable listings