Ga naar inhoud

Te koop: appartement Kranenburgweg 101 2583 EN 's-Gravenhage

Plink Garantiemakelaars Den Haag
Contact me
Plan viewing

Beschikbaar

Plan viewing

€ 569.500,- k.k.

Royaal dubbel bovenhuis met een schitterende maatvoering van ca. 137 m² woonoppervlak verdeeld over een stijlvolle living met een unieke frontbreedte van meer dan 7 meter, luxe open keuken met hoogwaardige inbouwapparatuur, 3/4 riante slaapkamers, stijlvolle badkamer en vrij uitzicht over kanaal aan de voorzijde.

De locatie rand Scheveningen/Geuzenkwartier is bovendien uitstekend te noemen met pal om de hoek van de meest toonaangevende horecazaken van dit moment “Catch” & “Encore” by Simonis, maar ook op kruipafstand van het strand van Scheveningen, op loopafstand van de winkels en traiteurs van “de Fred”, de Bosjes van Poot, internationale organisaties, scholen en openbaar vervoer.

Indeling:
Open portiek met trap naar de eerste etage, entree appartement, ruime entree met meterkast, trap naar de tweede etage, riante hal met toilet voorzien van wandcloset en fonteintje. Vanuit de woonkamer voormalig en suite met vaste kasten en achterbalkon over de volle breedte. Het vrije uitzicht en de lichtinval vanuit het zuidwesten is ronduit spectaculair te noemen en biedt bovendien volledige privacy.

De half open keuken is voorzien van hardstenen werkblad, 5-pits gaskookplaat, hoog model bakoven, inbouwmagnetron, apothekerskast, vaatwasser en rvs afzuigkap. Aan de voorzijde de eerste riante slaapkamer met eveneens prachtig uitzicht aan de voorzijde.

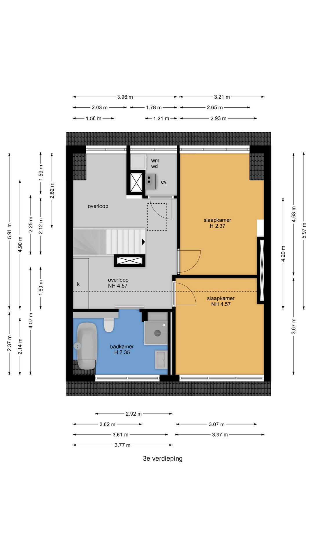
Vanuit de hal de trap naar de derde etage, brede overloop waar eventueel nog een extra slaapkamer valt te realiseren, technische ruimte met opstelplaats voor cv-ketel en wasmachine, tweede riante slaapkamer aan de voorzijde met dakkapel, derde slaapkamer eveneens goed van formaat met dakkapel en schitterende badkamer met daglichttoetreding, dakkapel, half vrijstaand ligbad, fraai tegelwerk, inloopdouche en meubel met wastafel.

Aanvullende informatie:
– ’s-Gravenhage sectie AK nummer 9830 A-3
– Bouwjaar 1934
– Eeuwigdurend heruitgegeven recht van erfpacht
– Woonoppervlak ca. 137 m²
– Energielabel C
– 3/7 aandeel in actieve VvE
– Maandelijkse VvE-bijdrage € 207,-
– Voorzien van waterontharder
– Voorzien van hydrofoor
– Cv-combiketel
– Ouderdoms- en materialenclausule van toepassing
– Algemene verkoopvoorwaarden Plink NVM Garantiemakelaars van toepassing
– Oplevering in overleg

  • 137 m2
  • 3

Features Kranenburgweg 101

Overdracht

Vraagprijs€ 569.500,- k.k.
AanvaardingIn overleg

Oppervlaktes en inhoud

Woonoppervlakte137 m2
Inhoud504 m3

Bouw

SoortBovenwoning
BouwvormBestaande bouw
Bouwjaar1934
IsolatievormenVloerisolatie, Dubbelglas
EnergielabelC

Indeling

Aantal verdiepingen4
Aantal kamers4
Aantal slaapkamers3
Aantal badkamers1

Monthly costs

Location Kranenburgweg 101

Voorzieningen

Centraal gelegen informatie over de buurt

Aantal inwoners

In de gemeente

524.882

Comparable listings