€ 589.000,- k.k.
Heerlijk licht en instap klaar 3-kamer parterre appartement met achtertuin en dakterras. Totaal ca. 90m² woonoppervlak met o.a. 2 ruime maat slaapkamers, heerlijke tuin, grote badkamer en veel bergruimte. Het appartement is gelegen in hartje Zeelheldenkwartier doch in een rustige straat, nabij een ruim aanbod aan winkels, de AH XL op loopafstand, gezellige horecagelegenheden en uitstekend te bereiken via omliggende uitvalswegen en het openbaar vervoer.
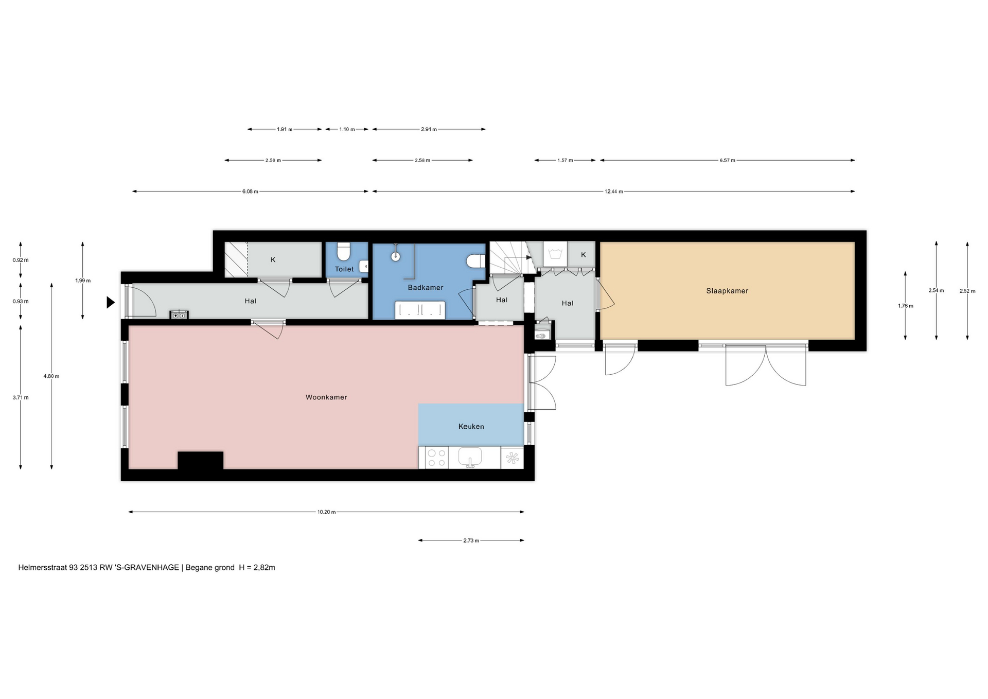
Indeling:
Entree op de begane grond met de meterkast. Ruime berging voor fietsen, koffers en schoonmaakspullen. Modern en keurig betegeld toilet met fonteintje. Deur naar de riante woonkamer met open keuken en warme laminaat vloer welke door de gehele woning ligt met uitzondering van de sanitaire ruimtes. Gezellige houtkachel, strak gestukte wanden, radiatorombouw en nieuwe deuren. De keuken heeft een inductie kookplaat, koel/vriescombinatie, vaatwasser, inbouwoven en een wasemkap.
Openslaande deuren naar de achter gelegen tuin met genoeg ruimte voor een eettafel, lounge set en bbq.
Via de hal naar de ruime badkamer met 2e toilet, dubbele wastafel met meubel, spiegel met verlichting, handdoekradiator en een inloopdouche. De ruimte onder trap is slim benut met de wasmachine aansluiting en vaste kasten voor veel bergruimte. Riante achtergelegen slaapkamer met speelse balken plafond, fraaie kozijnen met dubbel glas en openslaande deuren naar de tuin.
Met de trap naar de 1e etage voor de 2e slaapkamer met eigen terras. Gezien de lengte maat zou deze verdeeld in twee kamers kunnen worden. Via een vaste trap loopt u zo de tuin in.
Kortom een heerlijk parterre appartement met tuin, terras en bergruimte.
Aanvullende informatie:
– ’s-Gravenhage sectie O complexaanduiding 8490 A-1
– Bouwjaar 1909
– Eigen grond
– Energielabel D
– Gemeentelijk Beschermd Stadsgezicht Centrum
– 5/13ste aandeel in de gemeenschap
– Bijdrage VvE € 75,- per maand
– Cv-combiketel
– Woonoppervlak conform BBMI ca. 90 m²
– Ouderdoms-, niet bewonings- en materialenclausule van toepassing
– Algemene verkoopvoorwaarden Plink NVM Garantiemakelaars van toepassing
– Projectnotaris van toepassing
– Oplevering in overleg
- 90 m2
- 2
Features Helmersstraat 93
Overdracht
| Vraagprijs | € 589.000,- k.k. |
|---|---|
| Aanvaarding | In overleg |
Oppervlaktes en inhoud
| Woonoppervlakte | 90 m2 |
|---|---|
| Inhoud | 313 m3 |
Bouw
| Soort | Beneden plus bovenwoning |
|---|---|
| Bouwvorm | Bestaande bouw |
| Bouwjaar | 1909 |
| Isolatievormen | Dubbelglas |
| Energielabel | D |
Indeling
| Aantal verdiepingen | 2 |
|---|---|
| Aantal kamers | 4 |
| Aantal slaapkamers | 2 |
| Aantal badkamers | 1 |
Monthly costs
Location Helmersstraat 93
Voorzieningen
- Openbare Basisschool Max Velthuijs 19 m Da Costastraat 40 'S-GRAVENHAGE
- De Haagse Hogeschool 2 km Johanna Westerdijkplein 75 S-GRAVENHAGE
- ROC Mondriaan 2 km Leeghwaterplein 72 S-GRAVENHAGE
- De Haagse Hogeschool 2 km Johanna Westerdijkplein 75 S-GRAVENHAGE
- Technische Universiteit Delft 10 km Prometheusplein 1 DELFT
Centraal gelegen informatie over de buurt
Aantal inwoners
In de gemeente
524.882
Leeftijd
in percentages van totaal
Huishoudsamenstelling
in percentages van totaal
63%
20% NL
18%
20% NL
18%
20% NL