Ga naar inhoud

Te koop: woonhuis Frederik Hendriklaan 3 2582 BP 's-Gravenhage

Plink Garantiemakelaars Den Haag
Contact me
Plan viewing

Beschikbaar

Plan viewing

€ 1.750.000,- k.k.

Zeer fraaie monumentale half vrijstaande villa van bijzonder riante afmetingen totaal 8 kamers met een woonoppervlak van meer liefst 261 m2 voorzien van veel originele stijldetails zoals een fantastisch trappenhuis met bordestrappen, houten lambriseringen, rijk geornamenteerde plafonds, glas in lood ramen etc. Behoudens het riante woonoppervlak beschikt het pand over ca. 39m² kelderruimte, ca. 35 m² externe bergruimte waaronder de voormalige garage, ruime achtertuin, een groot dakterras en een eigen oprit voor 2 auto’s van ca. 10 meter lang.

De villa is gelegen op een sublieme locatie op een perceel van 309 m2 in een brede straat van het populaire Statenkwartier dat bekend staat om haar elegante architectuur, de gunstige ligging ten opzichte van het strand van Scheveningen, de vestiging van diverse internationale organisaties en de gezellige Frederik Hendriklaan met een ruim aanbod aan traiteurs, delicatessenzaken, hooggewaardeerde bistro’s en landelijke winkelketens.

De entree bevindt zich in een overdekt portaal en geeft toegang tot de ruime vestibule met erker voorzien van glas in lood ramen met luiken aan de buitenzijde, lambrisering, zwart-witte vloerplavuizen en meterkast, de tochtdeur met glasroedeverdeling leidt naar de indrukwekkende vierkante hal eveneens met glas-in-lood ramen voorzien van luiken aan de buitenzijde, fraai parket met band en bies, lambriseringen en een majestueus bordestrappenhuis. Luxe toilet met wandcloset en fontein, en voorts vanuit de centrale hal toegang tot de ruime kelder is verdeeld in 3 delen De Intergas HRE 48 solo CV-combiketel (bouwjaar 2022) bevindt zich hier.

De voorkamer van de kamers en suite is voorzien van een fraai geornamenteerd plafond, een erker met glas-in-lood bovenlichten, fraaie radiatoromkastingen, een parketvoer met band en bies en een gas open haard in een schoorsteenmantel met klassieke beschilderingen. De schuifdeuren met glasroedeverdeling leiden naar de achterkamer van de kamers en suite die eveneens is voorzien van een fraai geornamenteerd plafond en een parketvloer daarnaast 2 ingebouwde kasten, een open haard in een klassieke schoorsteenmantel met authentieke koud gezette siertegels en houten lambrisering, openslaande deuren met gebrandschilderde ramen naar de ruime zonnige en fraai aangelegde achtertuin met kleine waterpartij. De zeer ruime keuken met eethoek is voorzien van alle inbouwapparatuur, de keuken heeft eveneens openslaande tuindeuren en glas-in-lood bovenlichten.

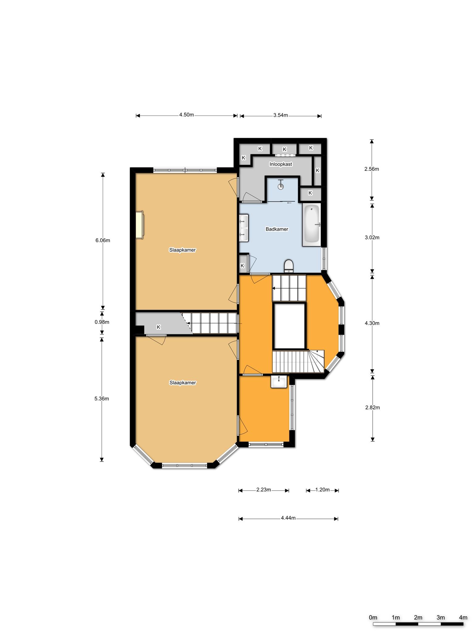
Op de 1e etage een prachtige ruime overloop met lambrisering, fraai origineel balkenplafond en glas-in-lood ramen, aan de achterzijde een ruime slaapkamer met geornamenteerd plafond, fraaie schoorsteenmantel, radiatoromkastingen en parketvloer, aansluitend een ruime walk-in-closet , toegang naar de riante badkamer die volledig is uitgerust met badkamergarnituur inclusief een vrijstaand bad op pootjes, separate douche, 2 wastafels op zuil, wandcloset, klassiek type kranen, Rvs-handdoekradiator, ingebouwde kast, inbouwspots, zwart gemarmerde vloer- en wandtegels alsmede wit gemarmerde wandtegels en vloerverwarming. De badkamer is eveneens vanaf de overloop te bereiken. De voorkamer fraai gedecoreerd met lambriseringen, radiatoromkastingen, een eker en parketvloer, grote inbouwkast. In 2016 is het glas vervangen voor Van Ruysdael isolatieglas. Het voormalige balkon is omgebouwd tot een serre met ramen voorzien van glasroeden.

Trap naar 2e etage, overloop met fraaie balkconstructie, pantry voorzien van werkblad met gootsteen en koelkast, badkamer met douche, wastafelmeubel, wandcloset, handdoekradiator en Velux dakraam, ruime voorkamer, openslaande deuren naar klein voorbalkon, deur naar zolderruimte, 2e ruime slaapkamer met openslaande deuren naar groot zonnig dakterras 5.60×3.09, 3e ruime slaapkamer met dakkapel en deur naar eerder genoemd terras. De kamers en overloop op deze verdieping zijn voorzien van kwalitatieve laminaatvloeren.

De voormalige garage is omgebouwd tot een grote verwarmde wasruimte, daarnaast is er nog een aparte fietsenberging en een grote schuur met daklicht.

Aanvullende informatie:
-’s-Gravenhage sectie AK nummer 6340
– Perceeloppervlak 309 m²
– Eigen grond
– Woonoppervlak conform BBMI 261 m²
– Rijks beschermd stadsgezicht
– Bouwjaar 1918
– CV-ketel Intergas HRE 48 HR 2022 met draadloze Honeywell thermostaat
– Energielabel E
– Rookkanalen open haarden vernieuwd in 2015
– Dakbedekking pannenkap vernieuwd en geisoleerd 2010
– Renovatie schoorstenen 2010
– Renovatie en impregneren gevel 2011
– KIWA certificaat
– Riolering inclusief aansluiting vervangen 2011
– Oplevering direct
– Ouderdoms- en milieu clausule van toepassing
– Algemene verkoopvoorwaarden Plink Garantiemakelaars van toepassing

  • 261 m2
  • 309 m2
  • 6

Features Frederik Hendriklaan 3

Overdracht

Vraagprijs€ 1.750.000,- k.k.
AanvaardingDirect

Oppervlaktes en inhoud

Perceel oppervlakte309 m2
Woonoppervlakte261 m2
Inhoud1.196 m3

Bouw

SoortHerenhuis
BouwvormBestaande bouw
Bouwjaar1918
Dak typeSamengesteld dak
IsolatievormenDakisolatie, Gedeeltelijk dubbelglas, Voorzetramen
EnergielabelE

Indeling

Aantal verdiepingen4
Aantal kamers8
Aantal slaapkamers6
Aantal badkamers2

Monthly costs

Location Frederik Hendriklaan 3

Voorzieningen

Centraal gelegen informatie over de buurt

Aantal inwoners

In de gemeente

524.882

Leeftijd

in percentages van totaal

Huishoudsamenstelling

in percentages van totaal

45%

20% NL

24%

20% NL

31%

20% NL

Comparable listings