Ga naar inhoud

Te koop: appartement Bentinckstraat 54 2582 SX 's-Gravenhage

Plink Garantiemakelaars Den Haag
Contact me

Verkocht

€ 795.000,- k.k.

Hoogwaardig 7-kamer dubbel bovenhuis met een spectaculair dakterras gelegen in het geliefde Statenkwartier pal om de hoek van een scala aan winkels op de Fred, op loopafstand van het strand en nabij diverse Internationale organisaties. Het pand beschikt over ca. 134 m² woonoppervlak verdeeld over stijlvolle living, luxe open keuken, goed formaat badkamer en vijf slaapkamers. Als klap op de vuurpijl een enorm dakterras van ca. 26 m² met vrij uitzicht rondom.

Dankzij de aangebrachte energiebesparende voorzieningen beschikt deze stijlvolle woning over een gunstig energielabel C.

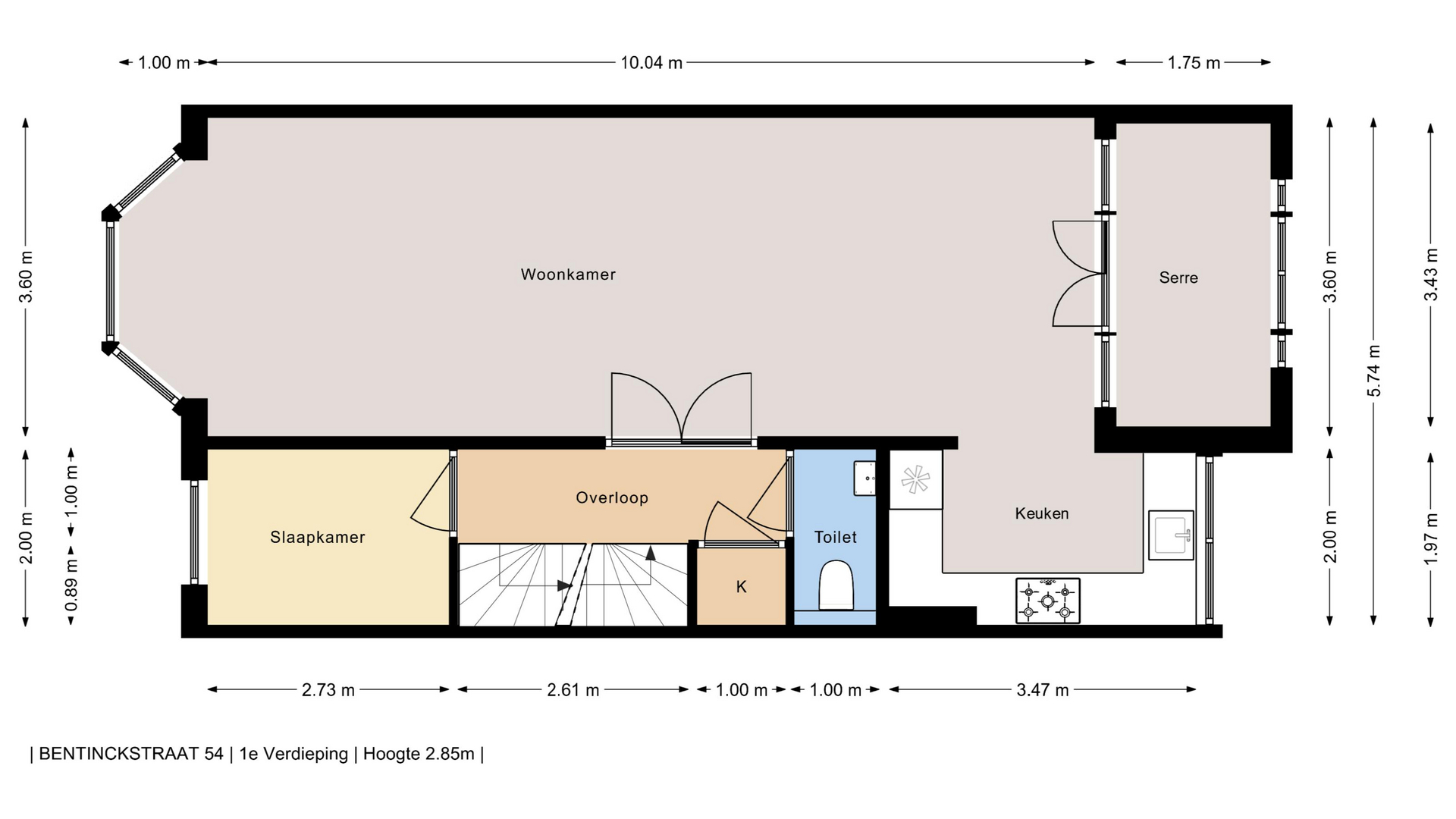
Entree op de begane grond, trap naar eerste etage met overloop voorzien van ruim toilet met fraai tegelwerk, wandcloset en fonteintje. Vanuit de overloop zijkamer aan de voorzijde en stalen kozijn naar sfeervolle woonkamer met loggia en luxe open keuken voorzien van hardstenen werkblad, 5-pits Boretti-fornuis met brede oven, Quooker, inbouwmagnetron, koel-/vriescombinatie, rvs afzuigkap en vaatwasser.
Voorts trap naar tweede etage, overloop met vaste kast voor wasmachine en cv-ketel, toilet met fraai tegelwerk, wandcloset en fonteintje, slaapkamer aan de voorzijde, slaapkamer aan de achterzijde, luxe tussengelegen badkamer met fraai tegelwerk, vloerverwarming, ligbad, inloopdouche met glazen wand, spiegelkast, wandcloset en meubel met dubbele kranen. Tot slot ruime slaapkamer aan de voorzijde met voorbalkon en ruime slaapkamer aan de achterzijde.

Aanvullende informatie:
– ’s-Gravenhage sectie AK 9698 A-3
– Eigen grond
– Bouwjaar 1914
– Rijks beschermd stadsgezicht
– 3/5 aandeel in VvE
– Maandelijkse VvE-bijdrage volgt
– Het appartement is inwendig gerenoveerd in 2017/2018
– Volledig voorzien van dubbele beglazing
– Algemene verkoopvoorwaarden van toepassing
– Ouderdomsclausule van toepassing

  • 134 m2
  • 5

Features Bentinckstraat 54

Overdracht

Vraagprijs€ 795.000,- k.k.
AanvaardingIn overleg

Oppervlaktes en inhoud

Woonoppervlakte134 m2
Inhoud464 m3

Bouw

SoortBovenwoning
BouwvormBestaande bouw
Bouwjaar1914
Dak typePlat dak
IsolatievormenDubbelglas
EnergielabelC

Indeling

Aantal verdiepingen2
Aantal kamers7
Aantal slaapkamers5
Aantal badkamers1

Monthly costs

Location Bentinckstraat 54

Voorzieningen

Centraal gelegen informatie over de buurt

Aantal inwoners

In de gemeente

524.882

Leeftijd

in percentages van totaal

Huishoudsamenstelling

in percentages van totaal

45%

20% NL

24%

20% NL

31%

20% NL

Comparable listings