€ 2.950,- p/m
Schitterend familiehuis aan de voet van het Zwarte Pad , strand en zee gelegen met een riant woonoppervlak van totaal ca. 255 m² verdeeld over woonkamer met spectaculaire lichtinval, moderne open keuken, twee volwaardige badkamers, sauna in de kelder, vier riante slaapkamers en hoogwaardig afgewerkte etage in de dakopbouw die als tweede woonkamer of als nog twee ruime slaapkamers gebruikt kan worden. De woning beschikt over een zeer gunstig energielabel A++, voor- en zonnige achtertuin ca. 55 m², een balkon aan de achterzijde en een zonneterras aan de voorzijde.
Dit heerlijke familiehuis is gelegen op eeuwigdurend afgekochte erfpachtgrond, op een perfecte locatie slechts 150 meter hemelsbreed van het strand van Scheveningen met uitgebreide voorzieningen binnen handbereik zoals kilometers lange stranden, strandtenten, de Pier, de Palace Promenade, het Kurhaus, het Holland Casino, Pathé en het Circustheater.
Indeling:
Ruime voortuin, entree met vestibule, tochtdeur met glasroedeverdeling naar de gang met toilet en deur naar kelder. De kelder is voorzien van veel bergruimte, meterkast en sauna. De begane grond is voorzien van lamelparketvloeren, erker aan de voorzijde, schuifpui naar de achtertuin met stenen berging en open keuken voorzien van composiet werkblad, koelkast, combimagnetron, inductiekookplaat en vaatwasser.
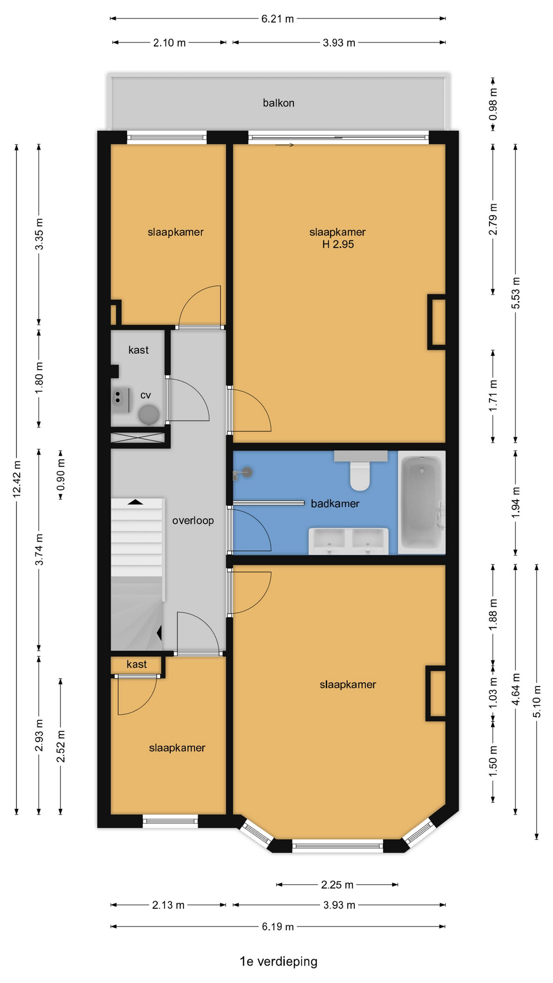
Vanuit de hal de trap naar de 1e etage, overloop voorzien van technische ruimte met cv-ketel en opstelplaats voor de wasmachine, zijkamer aan de voorzijde, zijkamer aan de achterzijde, riante slaapkamer aan de achterzijde met balkon over de volle breedte op de ochtend- en middagzon, riante slaapkamer aan de voorzijde met erker en tussen gelegen badkamer voorzien van inloopdouche met glazen wand, badkamermeubel met onderkasten, wandcloset en ligbad.
Vanuit de overloop de trap naar de 2e etage, gang met twee vaste kasten en apart toilet, tweede volwaardige badkamer voorzien van inloopdouche met glazen wand, vrijstaand ligbad en badkamermeubel met wastafel. Tot slot de riante tweede woonkamer met pantry, spectaculaire lichtinval en zonneterras met uitzicht aan de rechterzijde over de duinen van het Zwarte pad. Eventueel kan deze kamer door een koper worden opgedeeld in twee ruime slaapkamers.
Aanvullende informatie:
– ’s-Gravenhage sectie V nummer 4430
– Perceelgrootte 168 m²
– Erfpachtcanon eeuwigdurend afgekocht
– Bouwjaar 1926
– Energielabel A++ t/m 22/03/2024
– 10 zonnepanelen op het dak
– Volledig voorzien van dubbele beglazing
– Cv-combiketel Remeha 2015
– Ouderdoms-, niet-bewonings- en materialenclausule van toepassing
– Projectnotaris van toepassing
– Algemene verkoopvoorwaarde Plink NVM Garantiemakelaars van toepassing
– Oplevering in overleg
- 255 m2
- 168 m2
- 6
Features Gevers Deynootweg 143
Overdracht
| Huurprijs | € 2.950,- p/m |
|---|---|
| Aanvaarding | In overleg |
Oppervlaktes en inhoud
| Perceel oppervlakte | 168 m2 |
|---|---|
| Woonoppervlakte | 255 m2 |
| Inhoud | 964 m3 |
Bouw
| Soort | Herenhuis |
|---|---|
| Bouwvorm | Bestaande bouw |
| Bouwjaar | 1926 |
| Dak type | Plat dak |
| Isolatievormen | Dubbelglas |
| Energielabel | A++ |
Indeling
| Aantal verdiepingen | 3 |
|---|---|
| Aantal kamers | 7 |
| Aantal slaapkamers | 6 |
| Aantal badkamers | 2 |
Monthly costs
Location Gevers Deynootweg 143
Voorzieningen
- Protestants Christelijke Basisschool De Vuurtoren 783 m Stevinstraat 65E 'S-GRAVENHAGE
- Hotelschool The Hague 910 m Brusselselaan 2 S-GRAVENHAGE
- ROC Mondriaan 5 km Koningin Marialaan 9 S-GRAVENHAGE
- Hotelschool The Hague 910 m Brusselselaan 2 S-GRAVENHAGE
- Technische Universiteit Delft 14 km Prometheusplein 1 DELFT
Centraal gelegen informatie over de buurt
Aantal inwoners
In de gemeente
524.882
Leeftijd
in percentages van totaal
Huishoudsamenstelling
in percentages van totaal
51%
20% NL
24%
20% NL
25%
20% NL